Powered by
ホーム 中央区の居抜き・セットアップオフィスを探す 人形町駅徒歩5分、敷金最大0ヶ月!初期費用を抑えられるセットアップオフィス

人形町駅徒歩5分、敷金最大0ヶ月!初期費用を抑えられるセットアップオフィス

募集終了
当社管理物件
エリア:中央区日本橋堀留町
広さ:30〜60坪
席数:20〜39席
公開日:2024.11.26

物件のご紹介

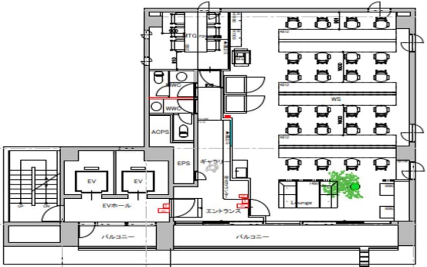
中央区日本橋に位置する38坪のセットアップオフィス「日本橋ノーススクエア」。小伝馬町駅や人形町駅から徒歩5分の距離で、周辺には多くの飲食店があり、ランチやクライアント会食時のお店選びにも困りません。

2025年1月にリニューアルした室内には、6名用会議室と、テレカンブース2室が完備されており、業務効率や創造性高める魅力的なワークスペースとなっています。

「敷金0」の契約プランもご相談可能で、コスト面を重視するスタートアップにも最適です。詳細については、是非お気軽にお問い合わせください。

おすすめポイント

  1. 「敷金0」でのご入居も相談可能な、内装付きセットアップオフィス
  2. 人形町駅、小伝馬町駅から徒歩5分の好立地
  3. 6名用の会議室、集中作業に最適なテレカンブースを2室完備
  4. ビル周辺は飲食店が充実
菅野 勇人

営業担当者

菅野 勇人

宅地建物取引士

 

セットアップオフィスから一般的なオフィスまで、多種多様なオフィスビルの魅力や特徴を熟知したオフィス物件マニア。

スタートアップ企業の移転支援経験が多く、そこで得た知見を活かし、お客様の理想のオフィス探しを全力でサポートいたします。

この物件を問い合わせる
物件概要
物件番号 s-2099
物件名 日本橋ノーススクエア
所在地 東京都中央区日本橋堀留町1-4-2
最寄り駅 東京メトロ日比谷線
人形町駅 徒歩5分

都営浅草線
人形町駅 徒歩6分

JR新日本橋駅
徒歩7分
階数 9F
面積 38.00坪 / 125.62m²
推奨席数 24席
物件タイプ セットアップオフィス
会議室数 6名掛け会議室×1
テレカンブース数 2室
竣工年 1993年3月
特徴・設備 # 敷金無し # テレカンブース付き # 会議室付き # 男女別トイレ # スケルトン天井 # 2路線利用可 # 最寄り駅から徒歩5分以内
募集条件
月額賃料@坪単価 ¥874,000円@23,000円 / 坪
敷金 / 保証金 最大0ヶ月
償却
礼金
更新料 / 再契約料
入居可能日 相談
契約期間 2年
原状回復有無
保証契約

※表示価格は税抜き価格です。

この物件を問い合わせる

物件のお問い合わせフォーム

オフィス物件を探す

キーワード
カテゴリー

Get In Touch!!

希望条件が決まっていなくても、オフィス移転のプロが要件定義からご一緒させていただきます。まずはお気軽にご相談くださいませ。

お電話でのお問い合わせはこちら

03-6858-3030

平日
9:00~18:00