Powered by
ホーム 中央区の居抜き・セットアップオフィスを探す 東京駅徒歩8分!会議室・テレカンブース完備のセットアップオフィス​

東京駅徒歩8分!会議室・テレカンブース完備のセットアップオフィス​

募集終了
当社管理物件
エリア:中央区日本橋兜町
広さ:〜30坪
席数:10〜19席
公開日:2024.11.26

物件のご紹介

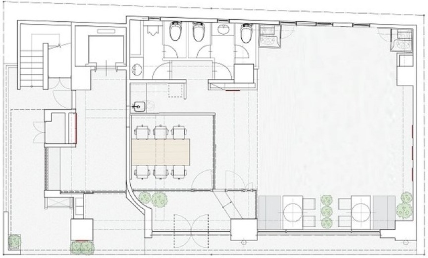
日本のビジネスの中心地「東京駅」から徒歩8分、東京メトロ「茅場町駅」も徒歩5分の「シーラックグループ 日本橋兜町ビル」は、中央区日本橋兜町に位置する、会議室・テレカンブース完備の内装付きセットアップオフィスです。

本物件は2023年2月にリニューアルされており、オフィスグリーンや木目調の装飾をアクセントとした、温かみのある内装となっています。

ガラスパーテーション会議室にテレカンブース2室、ラウンジスペースまで完備し、多様なワークスタイルに対応。「音のカーテン」という独自の音響設備も魅力です。

東京駅付近のセットアップ物件は大変貴重です。ぜひお早めにお問い合わせください。

おすすめポイント

  1. ビジネスの中心地「東京駅」が徒歩圏内、人気のセットアップオフィス
  2. 会議室・テレカンブース・ラウンジ完備で多様な働き方に対応
  3. 2023年リニューアル済、温かみのあるデザインのオフィス空間

菅野 勇人

営業担当者

菅野 勇人

宅地建物取引士

セットアップオフィスから一般的なオフィスまで、多種多様なオフィスビルの魅力や特徴を熟知したオフィス物件マニア。

スタートアップ企業の移転支援経験が多く、そこで得た知見を活かし、お客様の理想のオフィス探しを全力でサポートいたします。

この物件を問い合わせる
物件概要
物件番号 s-2176
物件名 シーラックグループ 日本橋兜町ビル
所在地 東京都中央区日本橋兜町18-5
最寄り駅 東京メトロ東西線
茅場町駅 徒歩5分

東京メトロ銀座線
日本橋駅 徒歩6分

都営浅草線
日本橋駅 徒歩6分

JR 東京駅 徒歩8分
階数 1階
面積 30.79坪(101.79㎡)
推奨席数 14席
物件タイプ セットアップオフィス
会議室数 6名掛け会議室×1
テレカンブース数 2室
竣工年 1986年10月
特徴・設備 # テレカンブース付き # 会議室付き # 男女別トイレ # 2路線利用可 # 最寄り駅から徒歩5分以内
募集条件
月額賃料@坪単価 800,540円(@26,000円)
敷金 / 保証金 3,202,160円(4ヶ月分)
償却
礼金
更新料 / 再契約料
入居可能日 相談
契約期間 2年
原状回復有無
保証契約

※表示価格は税抜き価格です。

この物件を問い合わせる

物件のお問い合わせフォーム

オフィス物件を探す

キーワード
カテゴリー

Get In Touch!!

希望条件が決まっていなくても、オフィス移転のプロが要件定義からご一緒させていただきます。まずはお気軽にご相談くださいませ。

お電話でのお問い合わせはこちら

03-6858-3030

平日
9:00~18:00