Powered by
ホーム 中央区の居抜き・セットアップオフィスを探す 日本橋駅徒歩3分、専用バルコニーと屋上テラス付のセットアップオフィス

日本橋駅徒歩3分、専用バルコニーと屋上テラス付のセットアップオフィス

募集終了
当社管理物件
エリア:中央区日本橋
広さ:〜30坪
席数:10席未満
公開日:2024.11.26

物件のご紹介

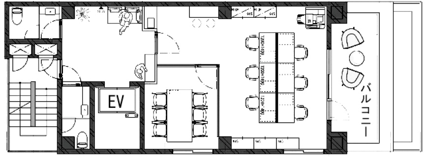
中央区日本橋に位置する『WORK BASE Nihombashi』は、東京メトロ銀座線・東西線「日本橋駅」から徒歩わずか3分、さらに日比谷線「茅場町駅」も徒歩6分と、都内主要エリアへのアクセスが非常に良好な内装付きセットアップオフィスです。

本物件は18.51坪(61.18㎡)、推奨6席規模のコンパクトなオフィスながら、6名掛けの会議室を1室備えており、社内外の打ち合わせにも対応可能です。

2018年にリニューアルされた清潔感のある内装に加え、専用バルコニーや入居者専用の屋上テラスも利用でき、快適な執務環境とリフレッシュスペースを提供します。男女別トイレ、個別空調、OAフロアといった必須設備が整っているのも嬉しいポイントです。

少人数スタートアップの初期フェーズ拠点や、成長フェーズのサテライトオフィスとしての利用に最適な物件です。2025年10月上旬入居予定となっております。日本橋エリアで小規模かつ機能的なオフィスをお探しの企業様は、ぜひお早めにご検討ください。

おすすめポイント

  1. 東京メトロ「日本橋駅」徒歩3分、3路線利用可能な抜群のアクセス
  2. 6名掛け会議室付きで、スムーズなミーティング運営をサポートするセットアップオフィス
  3. 専用バルコニー・入居者専用屋上テラスでリフレッシュスペースも確保
  4. 2018年リニューアル済み、清潔感のあるオフィス環境
菅野 勇人

営業担当者

菅野 勇人

宅地建物取引士

セットアップオフィスから一般的なオフィスまで、多種多様なオフィスビルの魅力や特徴を熟知したオフィス物件マニア。

スタートアップ企業の移転支援経験が多く、そこで得た知見を活かし、お客様の理想のオフィス探しを全力でサポートいたします。

この物件を問い合わせる
物件概要
物件番号 s-2198
物件名 WORK BASE Nihombashi
所在地 東京都中央区日本橋2-16-4
最寄り駅 東京メトロ銀座線
日本橋駅 徒歩3分

東京メトロ東西線
日本橋駅 徒歩3分

東京メトロ日比谷線
茅場町駅 徒歩6分
階数 8階
面積 18.51坪(61.18㎡)
推奨席数 6席
物件タイプ セットアップオフィス
会議室数 6名掛け会議室×1室
竣工年 1993年4月
特徴・設備 # 会議室付き # 屋上 / テラス有り # 男女別トイレ # 2路線利用可 # 最寄り駅から徒歩5分以内
募集条件
月額賃料@坪単価 ご相談
敷金 / 保証金 賃料の5ヶ月分
償却
礼金
更新料 / 再契約料
入居可能日 2025年10月上旬予定
契約期間 2年
原状回復有無
保証契約

※表示価格は税抜き価格です。

この物件を問い合わせる

物件のお問い合わせフォーム

オフィス物件を探す

キーワード
カテゴリー

Get In Touch!!

希望条件が決まっていなくても、オフィス移転のプロが要件定義からご一緒させていただきます。まずはお気軽にご相談くださいませ。

お電話でのお問い合わせはこちら

03-6858-3030

平日
9:00~18:00