Powered by
ホーム 中央区の居抜き・セットアップオフィスを探す 築地駅徒歩4分!眺望の良い屋上テラス付き、両面採光で明るい空間が魅力のセットアップオフィス

築地駅徒歩4分!眺望の良い屋上テラス付き、両面採光で明るい空間が魅力のセットアップオフィス

募集中
当社貸主物件
仲介手数料無料
エリア:中央区築地
広さ:30〜60坪
席数:20〜39席
公開日:2026.01.26

物件のご紹介

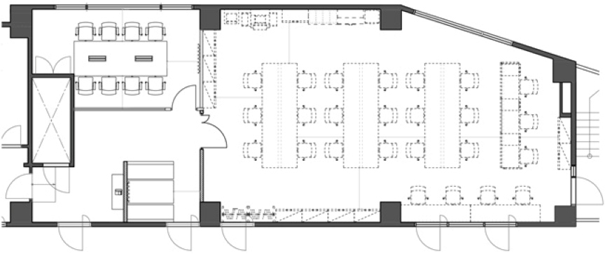
中央区築地エリア、銀座へのアクセスにも便利で、最寄りの「築地駅」から徒歩4分の距離に位置するセットアップオフィス『THE TERRACE TSUKIJI 2階(EAST)区画』をご紹介します。

約50坪の広さを有する専有部は、20名から25名程度のレイアウトに対応しており、事業拡大を目指す成長フェーズのスタートアップ・ベンチャー企業様に最適な空間です。白とグレーを基調としたシンプルモダンな内装は清潔感があり、両面に設けられた大きな窓からは自然光がたっぷりと降り注ぎます。

受付スペースから執務室内まで、全面が足音が響きにくいカーペット床を採用し、集中しやすい環境である点も本物件ならではの魅力。

基本的な内装のほか、会議室もあらかじめ設置されていますが、いずれもシンプルな仕上がりの内装で、ご入居後、企業のカラーに合わせたインテリアでの空間づくりも可能です。

屋上の開放的なテラスも利用可能で、気分転換やリフレッシュもしやすい設計になっています。資料請求や内覧をご希望の場合は、ぜひお気軽にお問い合わせください。

おすすめポイント

  1. 当社貸主物件のため【仲介手数料不要】
  2. 会議室2室を備えた、モダンな内装のセットアップオフィス
  3. 眺望抜群の開放的な屋上テラスも利用可能

同ビル別区画の物件はこちら

菅野 勇人

営業担当者

菅野 勇人

宅地建物取引士

セットアップオフィスから一般的なオフィスまで、多種多様なオフィスビルの魅力や特徴を熟知したオフィス物件マニア。

スタートアップ企業の移転支援経験が多く、そこで得た知見を活かし、お客様の理想のオフィス探しを全力でサポートいたします。

この物件を問い合わせる
物件概要
物件番号 s-2441
物件名 THE TERRACE TSUKIJI
所在地 東京都中央区築地7-2-1
最寄り駅 東京メトロ日比谷線
築地駅 徒歩4分

東京メトロ有楽町線
新富町駅 徒歩6分

都営浅草線
東銀座駅 徒歩10分

都営大江戸線
築地市場駅 徒歩10分

東京メトロ日比谷線
東銀座駅 徒歩10分
階数 2階EAST
面積 49.72坪(164.37㎡)
推奨席数 20~25席
物件タイプ セットアップオフィス
会議室数 8名掛け会議室×1室
竣工年 2008年4月
特徴・設備 # 会議室付き # 屋上 / テラス有り # 男女別トイレ # 2路線利用可 # 最寄り駅から徒歩5分以内
募集条件
月額賃料@坪単価 相談
敷金 / 保証金 6ヶ月
償却
礼金
更新料 / 再契約料
入居可能日 即日
契約期間 相談
原状回復有無
保証契約

※表示価格は税抜き価格です。

この物件を問い合わせる

物件のお問い合わせフォーム

オフィス物件を探す

キーワード
カテゴリー

Get In Touch!!

希望条件が決まっていなくても、オフィス移転のプロが要件定義からご一緒させていただきます。まずはお気軽にご相談くださいませ。

お電話でのお問い合わせはこちら

03-6858-3030

平日
9:00~18:00