Powered by
ホーム 中央区の居抜き・セットアップオフィスを探す 茅場町駅徒歩6分、充実のワークスペースが魅力のリニューアル済みセットアップオフィス

茅場町駅徒歩6分、充実のワークスペースが魅力のリニューアル済みセットアップオフィス

募集中
当社管理物件
エリア:中央区新川
広さ:80〜100坪
席数:20〜39席
公開日:2026.04.01

物件のご紹介

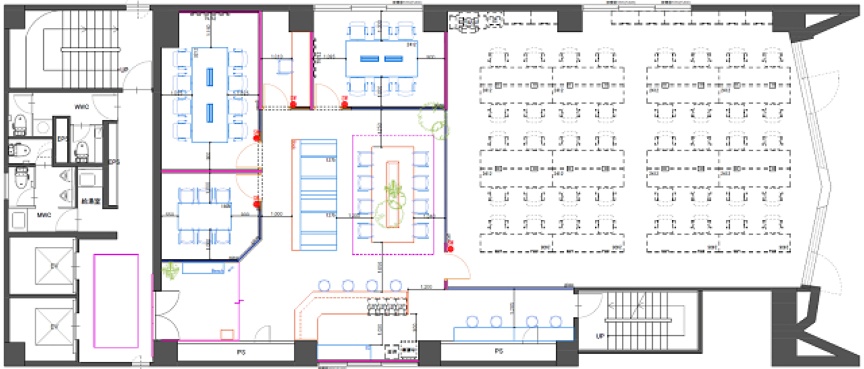
日本橋・八重洲に近く、落ち着いた雰囲気が魅力の日本橋茅場町エリアで、多彩なワークスペースを備えたセットアップオフィス『茅場町イーストスクエア』をご紹介します。東京メトロ日比谷線・東西線の茅場町駅から徒歩6分、JR八丁堀駅からも徒歩9分と、複数路線を利用できる立地です。

専有部の面積は約85.97坪(284.2㎡)。32〜40名を想定したオープンフロアの執務スペースに加えて、8名掛け会議室1室・6名掛け会議室2室の計3室とテレカンブース1室を完備しています。

コミュニケーションが取りやすい広々としたラウンジエリアには、ボックス席・長テーブル・カウンターと豊富な座席タイプが揃い、カフェのような心地よい雰囲気の中で快適に働ける環境が整っています。

2022年8月にリニューアル済みのため、清潔感のある空間でスタートを切れるのも魅力。成長フェーズのスタートアップ・ベンチャー企業様に最適な、使い勝手の良いオフィスです。詳細や内覧のご相談についてはお気軽にお問い合わせください。

おすすめポイント

  1. 東京メトロ・JRの複数路線利用可
  2. 会議室3室+テレカンブース1室+ラウンジを備えた、設備充実のセットアップオフィス
  3. 2022年リニューアル済み、清潔感のある快適な執務空間
  4. 広々としたオープンフロアで拡張フェーズにも柔軟に対応
菅野 勇人

営業担当者

菅野 勇人

宅地建物取引士

セットアップオフィスから一般的なオフィスまで、多種多様なオフィスビルの魅力や特徴を熟知したオフィス物件マニア。

スタートアップ企業の移転支援経験が多く、そこで得た知見を活かし、お客様の理想のオフィス探しを全力でサポートいたします。

この物件を問い合わせる
物件概要
物件番号 s-2468
物件名 茅場町イーストスクエア
所在地 東京都中央区新川1-22-11
最寄り駅 東京メトロ日比谷線
茅場町駅 徒歩6分

東京メトロ東西線
茅場町駅 徒歩6分

JR 八丁堀駅
徒歩9分
階数 2階
面積 85.97坪(284.2㎡)
推奨席数 32~40席
物件タイプ セットアップオフィス
会議室数 6名掛け会議室×2室
8名掛け会議室×1室
テレカンブース数 1室
竣工年 1989年10月
特徴・設備 # テレカンブース付き # 会議室付き # 男女別トイレ # 2路線利用可 # 最寄り駅から徒歩5分以内
募集条件
月額賃料@坪単価 2,149,250円(坪25,000円)
敷金 / 保証金 15,044,750円(7ヶ月分)
償却
礼金
更新料 / 再契約料
入居可能日 2026年9月上旬予定
契約期間 2年
原状回復有無
保証契約

※表示価格は税抜き価格です。

この物件を問い合わせる

物件のお問い合わせフォーム

オフィス物件を探す

キーワード
カテゴリー

Get In Touch!!

希望条件が決まっていなくても、オフィス移転のプロが要件定義からご一緒させていただきます。まずはお気軽にご相談くださいませ。

お電話でのお問い合わせはこちら

03-6858-3030

平日
9:00~18:00