Powered by
ホーム 中央区の居抜き・セットアップオフィスを探す 人形町駅徒歩5分|外観・エントランスリニューアル済み!高級感あるデザインのセットアップオフィス

人形町駅徒歩5分|外観・エントランスリニューアル済み!高級感あるデザインのセットアップオフィス

募集中
当社貸主物件
仲介手数料無料
エリア:中央区日本橋久松町
広さ:60〜80坪
席数:20〜39席
公開日:2026.03.09

物件のご紹介

古くから商業の中心として発展し、金融機能も集積する日本橋エリア。

近年は再開発も進み、より利便性と魅力が高まるこのエリアへ移転をご検討中のスタートアップ・ベンチャー企業様におすすめの、『FRAME日本橋』をご紹介します。都営新宿線・浜町駅から徒歩3分、都営浅草線・東京メトロ日比谷線の人形町駅からも徒歩5分と、3路線を利用できる交通利便性の高い立地です。

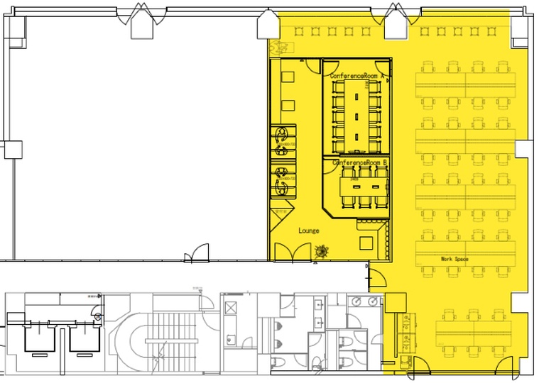
ご紹介の区画は64.66坪(213.74㎡)のセットアップオフィスで、最大40名規模でのご利用を想定しています。10名掛けと6名掛けの会議室を備えており、社内会議から顧客対応まで、幅広いシーンに対応可能です。

内装は高級感のあるホテルライクなデザインが施されており、2020年に外観・エントランスの大規模リニューアルも実施済み。お客様を迎える「顔」としての役割も果たします。

入居可能日は2026年5月中旬を予定しており、これからお問い合わせが増えることも予想されます。内覧のご希望やご不明点がございましたら、ぜひお早めにお問い合わせください。

おすすめポイント

  1. 当社貸主物件のため【仲介手数料不要】
  2. ホテルライクな高級感のある内装のセットアップオフィス
  3. 執務スペースは家具設置なしで、自由なレイアウトが可能
  4. 外観・エントランスまでリニューアル済みの新しく快適な環境
菅野 勇人

営業担当者

菅野 勇人

宅地建物取引士

セットアップオフィスから一般的なオフィスまで、多種多様なオフィスビルの魅力や特徴を熟知したオフィス物件マニア。

スタートアップ企業の移転支援経験が多く、そこで得た知見を活かし、お客様の理想のオフィス探しを全力でサポートいたします。

この物件を問い合わせる
物件概要
物件番号 s-2487
物件名 FRAME日本橋
所在地 東京都中央区日本橋久松町
最寄り駅 都営新宿線
浜町駅 徒歩3分

都営浅草線
人形町駅 徒歩5分

東京メトロ日比谷線
人形町駅 徒歩5分
階数 7階B区画
面積 64.66坪(213.74㎡)
推奨席数 32〜40席
物件タイプ セットアップオフィス
会議室数 6名掛け会議室×1室
10名掛け会議室×1室
竣工年 1989年
特徴・設備 # 会議室付き # 男女別トイレ # 2路線利用可 # 最寄り駅から徒歩5分以内
募集条件
月額賃料@坪単価 相談
敷金 / 保証金 相談
償却
礼金
更新料 / 再契約料
入居可能日 2026年5月中旬予定
契約期間 2年
原状回復有無
保証契約

※表示価格は税抜き価格です。

この物件を問い合わせる

物件のお問い合わせフォーム

オフィス物件を探す

キーワード
カテゴリー

Get In Touch!!

希望条件が決まっていなくても、オフィス移転のプロが要件定義からご一緒させていただきます。まずはお気軽にご相談くださいませ。

お電話でのお問い合わせはこちら

03-6858-3030

平日
9:00~18:00