Powered by
ホーム 港区の居抜き・セットアップオフィスを探す 三田駅徒歩1分!2024年竣工の築浅物件。什器完備のフルセットアップオフィス

三田駅徒歩1分!2024年竣工の築浅物件。什器完備のフルセットアップオフィス

募集終了
エリア:港区芝
広さ:〜30坪
席数:10席未満
公開日:2024.11.26

物件のご紹介


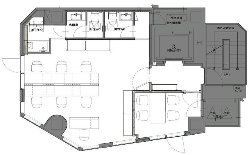
三田駅から徒歩1分、港区芝に位置する「BIASTA TAMACHI MITA」は田町駅から徒歩3分の好立地にあるフルセットアップオフィスです。2024年竣工の新築物件で、角地にあるため三面採光の取れる明るい貸室となっております。木目調でシンプルなブラックの什器を備えたスタイリッシュな内装も魅力的なポイントです。7名用の執務室と4名用の会議室には什器が完備されており、スピード感が大切なスタートアップ企業には嬉しい即日業務開始が可能です。

15坪程度のコンパクトなオフィスですが、男女別トイレが備わっているので女性社員の方も安心してご利用いただけます。周辺環境も充実し、ランチのお店選びにも困りません。また電車移動の利便性も非常に高いエリアです。コストパフォーマンスを求めるスタートアップ企業様にとても最適な物件ですので、ぜひこの機会にご検討ください!

おすすめポイント

  1. 12月末までのお申込で、6ヶ月間賃料免除キャンペーン実施中!
  2. 三田駅徒歩1分、田町駅徒歩3分のアクセス抜群の立地。天気が悪い日の通勤でも駅チカなので利便性抜群。
  3. 4名用会議室と、7名用の執務室什器が完備、すぐに業務がスタートできる。
  4. コンパクトサイズのオフィスですが、男女別トイレも完備。仕事環境に合わせて調光できる照明付き。

菅野 勇人

営業担当者

菅野 勇人

宅地建物取引士

 

セットアップオフィスから一般的なオフィスまで、多種多様なオフィスビルの魅力や特徴を熟知したオフィス物件マニア。

スタートアップ企業の移転支援経験が多く、そこで得た知見を活かし、お客様の理想のオフィス探しを全力でサポートいたします。

この物件を問い合わせる
物件概要
物件番号 fs-3069
物件名 ARISTO三田(旧:BIASTA TAMACHI MITA)
所在地 東京都港区芝5-19-6
最寄り駅 都営三田線
三田駅 徒歩1分

都営浅草線
三田駅 徒歩1分

JR田町駅
徒歩3分
階数 2階
面積 15.82坪 / 52.32m²
推奨席数 7席
物件タイプ フルセットアップオフィス
会議室数 4名掛け会議室×1
テレカンブース数
竣工年 2024年3月
特徴・設備 # 敷金3ヶ月以下 # 家具・什器付き # 会議室付き # 新築・築浅 # 2路線利用可 # 最寄り駅から徒歩5分以内
募集条件
月額賃料@坪単価 相談@― / 坪
敷金 / 保証金 ―(3ヶ月)
償却
礼金
更新料 / 再契約料
入居可能日 即日
契約期間 2年
原状回復有無
保証契約

※表示価格は税抜き価格です。

この物件を問い合わせる

物件のお問い合わせフォーム

オフィス物件を探す

キーワード
カテゴリー

Get In Touch!!

希望条件が決まっていなくても、オフィス移転のプロが要件定義からご一緒させていただきます。まずはお気軽にご相談くださいませ。

お電話でのお問い合わせはこちら

03-6858-3030

平日
9:00~18:00