Powered by
ホーム 芝大門の居抜き・セットアップオフィスを探す 大門駅徒歩4分!港区エリアの貴重な新築フルセットアップオフィス

大門駅徒歩4分!港区エリアの貴重な新築フルセットアップオフィス

募集中
当社管理物件
エリア:港区芝大門
広さ:〜30坪
席数:10〜19席
公開日:2025.11.14

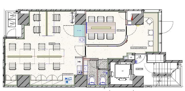
物件のご紹介

都営浅草線・大江戸線「大門駅」から徒歩4分、セットアップオフィスの少ない港区エリアに貴重な新築フルセットアップオフィスが登場です。

「御成門」「浜松町」エリアも徒歩圏内となっており、東京駅や品川駅まで10分以内で移動可能。従業員の出社や商談対応にも便利な立地となっています。大門駅周辺は隣接する丸の内や日本橋エリアに比べるとオフィス賃料がやや抑えめで、コスト面を重視するスタートアップにとって、魅力の大きいエリアです。

本物件は2025年5月にリノベーションが完了し、落ち着いた色味で木目を基調とした、スマートさと暖かさを両立した内装デザインがポイント。小規模なオフィスですが、テレカンブースと会議室を1室ずつ設置しており、デザイン性だけでなく、機能性も両立したコストパフォーマンスの高い物件となっています。

原状回復・敷金不要で、入退去費用を抑えたいスタートアップ企業様におすすめの物件です。港区エリアの新築フルセットアップオフィスは貴重で、人気が出ることが予想されます。ご興味のある企業様は是非お早めにお問い合わせください。

おすすめのポイント

  1. 原状回復・敷金不要で、入退去費用を抑えられる新築フルセットアップオフィス
  2. 人気の港区、ナチュラルなデザインの新築フルセットアップオフィス
  3. ビジネスの中心地「御成門」「浜松町」エリアも徒歩圏内
菅野 勇人

営業担当者

菅野 勇人

宅地建物取引士

セットアップオフィスから一般的なオフィスまで、多種多様なオフィスビルの魅力や特徴を熟知したオフィス物件マニア。

スタートアップ企業の移転支援経験が多く、そこで得た知見を活かし、お客様の理想のオフィス探しを全力でサポートいたします。

この物件を問い合わせる
物件概要
物件番号 fs-3072
物件名 NOVEL WORK Shibadaimon
所在地 東京都港区芝大門1-2-8
最寄り駅 都営大江戸線
大門駅 徒歩4分

都営浅草線
大門駅 徒歩4分

都営三田線
御成門駅 徒歩6分

JR 浜松町駅
徒歩8分
面積 20.00坪 (66.14m²)
推奨席数 12席
物件タイプ フルセットアップオフィス
会議室数 6名掛け会議室×1
テレカンブース数 1室
竣工年 2024年3月
特徴・設備 # 敷金無し # 原状回復免除 # 家具・什器付き # テレカンブース付き # 会議室付き # 男女別トイレ # 新築・築浅 # 2路線利用可 # 最寄り駅から徒歩5分以内
募集条件
月額賃料@坪単価 680,000円(@34,000円)
敷金 / 保証金 最大0ヶ月
償却
礼金
更新料 / 再契約料
入居可能日 2025年5月中旬
契約期間 2年 (1年以内での解約不可)
原状回復有無
保証契約

※表示価格は税抜き価格です。

この物件を問い合わせる

物件のお問い合わせフォーム

オフィス物件を探す

キーワード
カテゴリー

Get In Touch!!

希望条件が決まっていなくても、オフィス移転のプロが要件定義からご一緒させていただきます。まずはお気軽にご相談くださいませ。

お電話でのお問い合わせはこちら

03-6858-3030

平日
9:00~18:00