Powered by
ホーム 港区の居抜き・セットアップオフィスを探す 新橋駅徒歩1分!敷金最大0ヶ月の内装・家具付きフルセットアップオフィス

新橋駅徒歩1分!敷金最大0ヶ月の内装・家具付きフルセットアップオフィス

募集終了
エリア:港区新橋
広さ:〜30坪
席数:10〜19席
公開日:2024.11.26

物件のご紹介

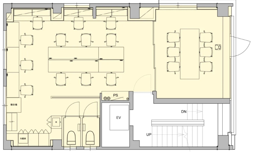
都内でも有数のビジネス街である新橋エリア、スタートアップやベンチャー企業様から人気の家具付きフルセットアップオフィス『I/O shimbashi』をご紹介します。東京メトロ銀座線「新橋駅」からは徒歩わずか1分、加えてJR線など3路線が利用できるアクセス良好なロケーションが魅力です。

2020年8月にリニューアル済みの室内は、スケルトン天井とコンクリート調の床が印象的な、開放感あふれるインダストリアルデザイン。推奨12席の執務スペースに加え、6名利用可能なゆとりある会議室も完備しています。内装と家具什器がすでに整っているため、移転後すぐに業務を開始できます。

保証会社の利用で「敷金0」、加えて水道光熱費や清掃費が賃料に含まれているため、初期費用・ランニングコストの面でも効率的な物件です。
内覧のご相談など、お気軽にお問い合わせください。

おすすめポイント

  1. 保証会社の利用で「敷金0ヶ月」、移転コストを大幅に削減
  2. 新橋駅徒歩1分という抜群のアクセス、JR含む3路線が利用可能
  3. デザイン性の高い内装と家具・会議室を備えたフルセットアップオフィス
菅野 勇人

営業担当者

菅野 勇人

宅地建物取引士

セットアップオフィスから一般的なオフィスまで、多種多様なオフィスビルの魅力や特徴を熟知したオフィス物件マニア。

スタートアップ企業の移転支援経験が多く、そこで得た知見を活かし、お客様の理想のオフィス探しを全力でサポートいたします。

この物件を問い合わせる
物件概要
物件番号 fs-3267
物件名 I/O shimbashi
所在地 東京都港区新橋1-11-2
最寄り駅 東京メトロ銀座線
新橋駅 徒歩1分

JR 新橋駅
徒歩2分

都営浅草線
新橋駅 徒歩4分
面積 17.47坪(57.77㎡)
推奨席数 12席
物件タイプ フルセットアップオフィス
会議室数 6名掛け会議室×1室
竣工年 1964年11月
特徴・設備 # 敷金無し # 家具・什器付き # 会議室付き # 屋上 / テラス有り # スケルトン天井 # 男女別トイレ # 2路線利用可 # 最寄り駅から徒歩5分以内
募集条件
月額賃料@坪単価 相談
敷金 / 保証金 最大0ヶ月
償却
礼金
更新料 / 再契約料
入居可能日 2025年10月1日予定
契約期間 相談
原状回復有無
保証契約

※表示価格は税抜き価格です。

この物件を問い合わせる

物件のお問い合わせフォーム

オフィス物件を探す

キーワード
カテゴリー

Get In Touch!!

希望条件が決まっていなくても、オフィス移転のプロが要件定義からご一緒させていただきます。まずはお気軽にご相談くださいませ。

お電話でのお問い合わせはこちら

03-6858-3030

平日
9:00~18:00