Powered by
ホーム 港区の居抜き・セットアップオフィスを探す 港区虎ノ門エリア、充実のワークスペースと共用設備が魅力の新築フルセットアップオフィス

港区虎ノ門エリア、充実のワークスペースと共用設備が魅力の新築フルセットアップオフィス

募集中
エリア:港区西新橋
広さ:100坪〜
席数:40〜59席
公開日:2025.12.24

物件のご紹介

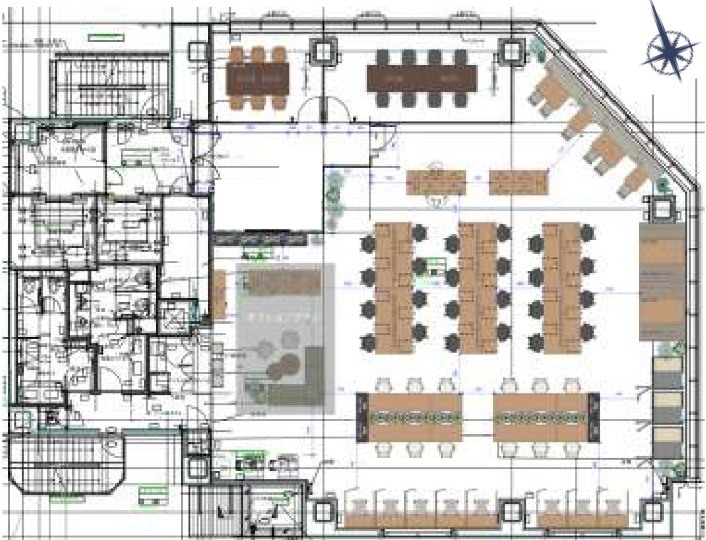
都内屈指のビジネスエリア「虎ノ門・西新橋エリア」に、貴重な新築フルセットアップオフィス『BIZCORE西新橋』が登場しました。東京メトロ「虎ノ門」駅から徒歩6分の立地で、JR「新橋」駅も徒歩圏内、都内各所への移動がスムーズな利便性に優れたロケーションです。

ご紹介する区画は、大きな窓面から自然光が豊かに差し込む110坪超の開放的なオフィス空間で、最大50名程度での利用が可能。会議室3室とテレカンブース3室に加え、複数の半個室ブースやファミレス席、オープンスペースといった多様なワークスペースが設けられており、従業員の皆様のさまざまな働き方に対応できます。

Wi-Fi完備の入居者専用ラウンジやリフレッシュに最適な屋上庭園など、共用設備も充実しており、企業の生産性を高める環境が整っています。

ご関心がございましたら、ぜひお早めにお問い合わせください。

※掲載写真は他フロアを撮影した参考写真です。

おすすめポイント

  1. 多様なワークスペースを備えた、家具付きフルセットアップオフィス
  2. 2025年竣工で内装・設備が新しい新築物件
  3. Wi-Fi付きラウンジや開放的な屋上庭園など、ハイグレードな共用施設
菅野 勇人

営業担当者

菅野 勇人

宅地建物取引士

セットアップオフィスから一般的なオフィスまで、多種多様なオフィスビルの魅力や特徴を熟知したオフィス物件マニア。

スタートアップ企業の移転支援経験が多く、そこで得た知見を活かし、お客様の理想のオフィス探しを全力でサポートいたします。

この物件を問い合わせる
物件概要
物件番号 fs-3315
物件名 BIZCORE西新橋
所在地 東京都港区西新橋3-13-3
最寄り駅 東京メトロ日比谷線
虎ノ門ヒルズ駅 徒歩6分

東京メトロ銀座線
虎ノ門駅 徒歩6分

都営三田線
御成門駅 徒歩7分

東京メトロ日比谷線
神谷町駅 徒歩9分

JR 新橋駅
徒歩11分
階数 相談
面積 110.59坪(365.60㎡)
推奨席数 40~50席
物件タイプ フルセットアップオフィス
会議室数 6名掛け会議室×2室
10名掛け会議室×1室
テレカンブース数 3室
竣工年 2025年2月
特徴・設備 # 家具・什器付き # テレカンブース付き # 会議室付き # 共有ラウンジ有り # 屋上 / テラス有り # 男女別トイレ # 新築・築浅 # 2路線利用可
募集条件
月額賃料@坪単価 相談
敷金 / 保証金 12ヶ月
償却
礼金
更新料 / 再契約料
入居可能日 2026年5月頃
契約期間 相談
原状回復有無
保証契約

※表示価格は税抜き価格です。

この物件を問い合わせる

物件のお問い合わせフォーム

オフィス物件を探す

キーワード
カテゴリー

Get In Touch!!

希望条件が決まっていなくても、オフィス移転のプロが要件定義からご一緒させていただきます。まずはお気軽にご相談くださいませ。

お電話でのお問い合わせはこちら

03-6858-3030

平日
9:00~18:00