Powered by
ホーム 港区の居抜き・セットアップオフィスを探す 【仲介手数料不要】三田駅徒歩2分、会議スペース充実の新装フルセットアップオフィス

【仲介手数料不要】三田駅徒歩2分、会議スペース充実の新装フルセットアップオフィス

募集中
当社貸主物件
仲介手数料無料
エリア:港区
広さ:30〜60坪
席数:20〜39席
公開日:2025.10.26

物件のご紹介

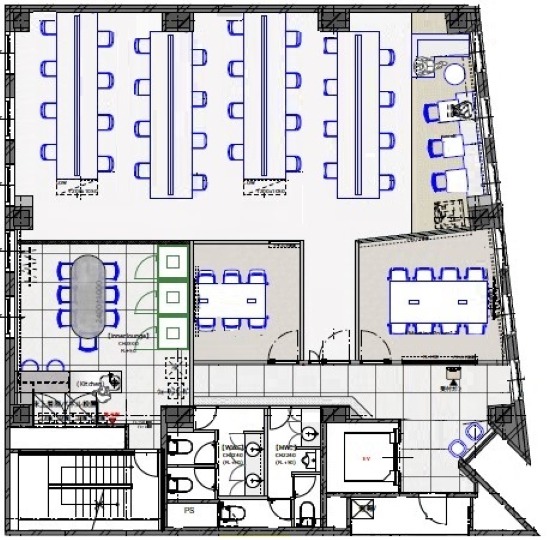
都営浅草線・三田線「三田」駅から徒歩わずか2分、打ち合わせスペース不足にお困りのスタートアップ企業様にもおすすめの、フルセットアップオフィス『藤ビル』7階区画のご紹介です。

本物件は内装から什器まで全てを完備しており、32席の執務スペースのほか、会議室2室(8名用・6名用)とテレカンブース3室、さらに広々としたラウンジエリアまで備えた充実のワークスペースが魅力。社内会議からクライアントとの商談、個別でのオンラインミーティングまで、多様なビジネスシーンに柔軟に対応できる環境が整っています。

2025年10月に内装工事が完了し、次のフェーズを新しい環境でスタートさせたい企業様にも最適です。資料請求は、ぜひお気軽にお問い合わせください。

おすすめポイント

  1. 当社貸主物件のため【仲介手数料不要】
  2. 都営三田駅徒歩2分、JR田町駅徒歩4分の好アクセス
  3. 内装・什器完備ですぐに業務を開始できるフルセットアップオフィス
  4. シーンに合わせて柔軟に活用できる、広々としたラウンジスペース

同ビル別フロアの物件はこちら

菅野 勇人

営業担当者

菅野 勇人

宅地建物取引士

セットアップオフィスから一般的なオフィスまで、多種多様なオフィスビルの魅力や特徴を熟知したオフィス物件マニア。

スタートアップ企業の移転支援経験が多く、そこで得た知見を活かし、お客様の理想のオフィス探しを全力でサポートいたします。

この物件を問い合わせる
物件概要
物件番号 fs-3343
物件名 THE PORTAL 田町(旧:藤ビル)
所在地 東京都港区芝5-30-9
最寄り駅 都営浅草線
三田駅 徒歩2分

都営三田線
三田駅 徒歩2分

JR 田町駅
徒歩4分
階数 7階
面積 57.73坪(190.84㎡)
推奨席数 32席
物件タイプ フルセットアップオフィス
会議室数 6名掛け会議室×1室
8名掛け会議室×1室
テレカンブース数 3室
竣工年 1987年9月
特徴・設備 # 家具・什器付き # テレカンブース付き # 会議室付き # 男女別トイレ # 2路線利用可 # 最寄り駅から徒歩5分以内
募集条件
月額賃料@坪単価 1,905,090円(坪33,000円)
敷金 / 保証金 11,430,540円(6ヶ月分)
償却
礼金
更新料 / 再契約料
入居可能日 2025年12月~1月
契約期間 2年
原状回復有無
保証契約

※表示価格は税抜き価格です。

この物件を問い合わせる

物件のお問い合わせフォーム

オフィス物件を探す

キーワード
カテゴリー

Get In Touch!!

希望条件が決まっていなくても、オフィス移転のプロが要件定義からご一緒させていただきます。まずはお気軽にご相談くださいませ。

お電話でのお問い合わせはこちら

03-6858-3030

平日
9:00~18:00