Powered by
ホーム 港区の居抜き・セットアップオフィスを探す 三田駅徒歩4分!会議室4室・テレカンブース5室完備の、大規模向けフルセットアップオフィス

三田駅徒歩4分!会議室4室・テレカンブース5室完備の、大規模向けフルセットアップオフィス

募集終了
エリア:港区芝
広さ:80〜100坪
席数:40〜59席
公開日:2025.10.01

物件のご紹介

ビジネス街として人気が高まる田町・三田エリアで、理想のオフィスをお探しのスタートアップ・ベンチャー企業様におすすめの『PMO田町IV 7階』のご紹介です。本物件は都営浅草線および三田線の「三田駅」から徒歩4分、JR「田町駅」からも徒歩5分という好アクセスを誇り、通勤や顧客への訪問もスムーズです。

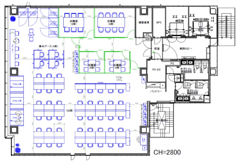
約99坪の専有部は、最大47名程度での利用を想定したフルセットアップオフィス仕様となっており、機能的な家具・什器があらかじめ配置されています。社内ミーティングや来客対応に便利な会議室を4室、昨今のビジネスシーンに不可欠なテレカンブースも5室完備しており、入居直後から快適な環境で、スピーディに業務を開始できます。

天井高2.7mを確保した開放的な執務空間や、強固なセキュリティなど、成長フェーズの企業様にとって、グレード感も申し分ありません。ワンフロア・ワンテナントによる独立性の高さも魅力です。

即日入居可能となっております。資料請求や内覧をご希望の場合は、ぜひお早めにお問い合わせください。

おすすめポイント

  1. 三田駅徒歩4分・田町駅徒歩5分の好立地
  2. 会議室4室・テレカンブース5室完備の充実した執務環境
  3. 2022年築、天井高2.7mの開放感あふれるハイグレード空間
  4. 強固なセキュリティで企業の信頼性も向上
菅野 勇人

営業担当者

菅野 勇人

宅地建物取引士

セットアップオフィスから一般的なオフィスまで、多種多様なオフィスビルの魅力や特徴を熟知したオフィス物件マニア。

スタートアップ企業の移転支援経験が多く、そこで得た知見を活かし、お客様の理想のオフィス探しを全力でサポートいたします。

この物件を問い合わせる
物件概要
物件番号 fs-3430
物件名 PMO田町Ⅳ
所在地 東京都港区芝5-29-19
最寄り駅 都営浅草線
三田駅 徒歩4分

都営三田線
三田駅 徒歩4分

JR 田町駅
徒歩5分
階数 7階
面積 99.39坪(328.59㎡)
推奨席数 47席
物件タイプ フルセットアップオフィス
会議室数 4名掛け会議室×2室
6名掛け会議室×1室
8名掛け会議室×1室
テレカンブース数 5室
竣工年 2022年6月
特徴・設備 # 家具・什器付き # テレカンブース付き # 会議室付き # 男女別トイレ # 新築・築浅 # 2路線利用可 # 最寄り駅から徒歩5分以内
募集条件
月額賃料@坪単価 相談
敷金 / 保証金 12ヶ月
償却
礼金
更新料 / 再契約料
入居可能日 即日
契約期間 相談
原状回復有無
保証契約

※表示価格は税抜き価格です。

この物件を問い合わせる

物件のお問い合わせフォーム

オフィス物件を探す

キーワード
カテゴリー

Get In Touch!!

希望条件が決まっていなくても、オフィス移転のプロが要件定義からご一緒させていただきます。まずはお気軽にご相談くださいませ。

お電話でのお問い合わせはこちら

03-6858-3030

平日
9:00~18:00