Powered by
ホーム 港区の居抜き・セットアップオフィスを探す 【敷金最大0】港区麻布台エリアの内装付きセットアップオフィス

【敷金最大0】港区麻布台エリアの内装付きセットアップオフィス

募集終了
当社管理物件
エリア:港区麻布台
広さ:30〜60坪
席数:20〜39席
公開日:2024.11.26

物件のご紹介

『VILLAGE AZABUDAI』は、スタートアップ企業から注目される「Tokyo Venture Capital Hub」でも有名な『麻布台ヒルズ』のある、港区麻布台エリアに立地する内装付きセットアップオフィスです。

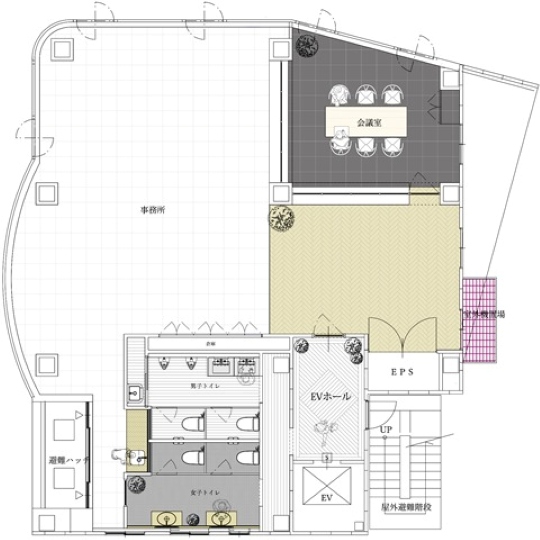
本物件は2022年11月にエントランスと貸室の大規模リニューアルを実施。天井高3,150mmの開放的な室内は、木目の床面と白壁、スケルトン天井が印象的な、モダンで洗練されたオフィスデザインとなっています。6名掛け会議室付きで、ビジネス上の利便性も考慮された設計です。

特筆すべきは【敷金0】で初期費用を大幅に抑えたご入居が可能な点。さらには、内装工事済の「セットアップオフィス」ということもあり、入居時の工事が不要、トータルの初期コストを大幅に抑えての移転が可能となっています。

スタートアップ・ベンチャー企業様にも人気の「港区麻布台エリア」でハイグレードかつコストパフォーマンスに優れたオフィススペースをお探しなら、特におすすめの物件です。即日入居可能となっているため、ご検討の場合は、ぜひお早めにお問い合わせください。

おすすめポイント

  1. スタートアップ企業からも注目される「港区麻布台エリア」
  2. 内装工事済みのセットアップオフィス、さらに【敷金0】で、初期コストを大幅削減
  3. 2022年リニューアル済み、モダンかつ利便性も考慮されたオフィスデザイン
菅野 勇人

営業担当者

菅野 勇人

宅地建物取引士

セットアップオフィスから一般的なオフィスまで、多種多様なオフィスビルの魅力や特徴を熟知したオフィス物件マニア。

スタートアップ企業の移転支援経験が多く、そこで得た知見を活かし、お客様の理想のオフィス探しを全力でサポートいたします。

この物件を問い合わせる
物件概要
物件番号 s-2189
物件名 VILLAGE AZABUDAI
所在地 東京都港区麻布台1-11-5​
最寄り駅 東京メトロ日比谷線
神谷町駅 徒歩4分

都営大江戸線
赤羽橋駅 徒歩10分
面積 49.228坪(162.74㎡)
推奨席数 20席
物件タイプ セットアップオフィス
会議室数 6名掛け会議室×1
竣工年 1991年1月
特徴・設備 # 敷金無し # 会議室付き # スケルトン天井 # 男女別トイレ # 最寄り駅から徒歩5分以内 # 2路線利用可
募集条件
月額賃料@坪単価 1,230,700円(坪25,000円)
敷金 / 保証金 最大0ヶ月
償却
礼金
更新料 / 再契約料
入居可能日 即日
契約期間 2年
原状回復有無
保証契約

※表示価格は税抜き価格です。

この物件を問い合わせる

物件のお問い合わせフォーム

オフィス物件を探す

キーワード
カテゴリー

Get In Touch!!

希望条件が決まっていなくても、オフィス移転のプロが要件定義からご一緒させていただきます。まずはお気軽にご相談くださいませ。

お電話でのお問い合わせはこちら

03-6858-3030

平日
9:00~18:00