Powered by
ホーム 港区の居抜き・セットアップオフィスを探す 三田駅徒歩6分!25年6月新装のセットアップオフィス

三田駅徒歩6分!25年6月新装のセットアップオフィス

募集終了
当社貸主物件
仲介手数料無料
エリア:港区芝
広さ:30〜60坪
席数:20〜39席
公開日:2024.11.26

物件のご紹介

港区芝エリアの『marumoto芝公園』は、都営三田線「芝公園駅」から徒歩3分、都営浅草線「三田駅」からも徒歩6分という好立地に位置する、移転コスト削減に最適な、内装付きセットアップオフィスです。
JR「浜松町駅」や都営大江戸線・浅草線「大門駅」も徒歩圏内にあり、複数路線が利用できる交通利便性の高い環境です。

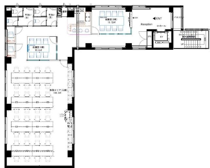
58.65坪(193.89㎡)の広々としたオフィス空間には、32席の執務スペースに加え、6名用と8名用の会議室(什器設置予定)を2室、テレカンブース2室を完備。
2025年6月に内装造作付きセットアップ工事が完了予定で、設備が新しく、清潔感溢れる環境を提供します。

入居可能日は2025年7月上旬予定となっており、港区エリア内で最寄りへのアクセス良好、かつ、
【内装工事不要】で移転費用を抑えることのできる移転先をお探しの企業様には最適な物件です。

お問い合わせの増えるタイミングとなっております。
ご興味がございましたら、ぜひお早めにお問い合わせください。

おすすめポイント

  1. 都営三田線「芝公園駅」徒歩3分、JR含む5路線が利用可能なアクセス環境
  2. 32席の執務スペースに、会議室2室・テレカンブース2室を完備した内装付きセットアップオフィス
  3. 2025年6月セットアップ工事完了予定で、清潔感あふれる快適なオフィス環境を提供
  4. 【内装工事不要】で移転コストを抑えたい企業様に最適

菅野 勇人

営業担当者

菅野 勇人

宅地建物取引士

セットアップオフィスから一般的なオフィスまで、多種多様なオフィスビルの魅力や特徴を熟知したオフィス物件マニア。

スタートアップ企業の移転支援経験が多く、そこで得た知見を活かし、お客様の理想のオフィス探しを全力でサポートいたします。

この物件を問い合わせる
物件概要
物件番号 s-2192
物件名 marumoto芝公園
所在地 ​​東京都港区芝2-9-11​
最寄り駅 都営三田線
芝公園駅 徒歩3分

都営浅草線
三田駅 徒歩6分

JR 浜松町駅
徒歩10分

都営浅草線
大門駅 徒歩10分

都営大江戸線
大門駅 徒歩10分
階数 3階
面積 ​58.65坪(193.89㎡)​
推奨席数 32席
物件タイプ セットアップオフィス
会議室数 6名掛け会議室×1室
8名掛け会議室×1室
テレカンブース数 2室
竣工年 2021年4月
特徴・設備 # テレカンブース付き # 会議室付き # 男女別トイレ # 2路線利用可 # 最寄り駅から徒歩5分以内
募集条件
月額賃料@坪単価 1,290,300円(坪22,000円)
敷金 / 保証金 6,686,100円(6ヶ月)
償却 賃料の1ヶ月分
礼金
更新料 / 再契約料 新賃料の1ヶ月分
入居可能日 2025年7月上旬予定
契約期間 2年
原状回復有無
保証契約

※表示価格は税抜き価格です。

この物件を問い合わせる

物件のお問い合わせフォーム

オフィス物件を探す

キーワード
カテゴリー

Get In Touch!!

希望条件が決まっていなくても、オフィス移転のプロが要件定義からご一緒させていただきます。まずはお気軽にご相談くださいませ。

お電話でのお問い合わせはこちら

03-6858-3030

平日
9:00~18:00