Powered by
ホーム 港区の居抜き・セットアップオフィスを探す 【敷金最大0】芝公園駅徒歩5分|デザイン性の高い内装付きセットアップオフィス

【敷金最大0】芝公園駅徒歩5分|デザイン性の高い内装付きセットアップオフィス

募集中
エリア:港区
広さ:30〜60坪
席数:20〜39席
公開日:2025.09.22

物件のご紹介

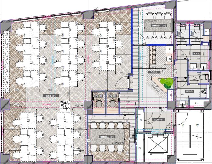
都営三田線「芝公園」駅から徒歩5分 、「三田」駅やJR「田町」駅も徒歩圏内で 、3駅複数路線が利用可能な芝公園エリアに、年内ご入居可能(予定)のデザイン性の高いセットアップオフィス『ARZ芝公園』が登場します。

ご紹介する2階区画は45.88坪(151.68㎡)、最大34名規模を想定したレイアウトとなっています。高級感のある内装に、ポイントで施されたグリーンのカラーリングが際立つ、上質で洗練されたデザインが魅力。会議室2室とテレカンブース2室が標準装備で、コストと時間のかかる内装工事が不要となっているのも大きなポイントです。

保証会社を利用すれば「敷金最大0」で、初期費用を大幅に抑えることができるこちらの物件。ご関心がございましたら、ぜひお早めにお問い合わせください。

おすすめポイント

  1. 保証会社の利用で「敷金最大0」、移転コストを大幅に削減
  2. 会議室2室とテレカンブース2室を完備、内装付きで便利なセットアップオフィス
  3. 上質で洗練された空間が、企業ブランディングにも貢献
菅野 勇人

営業担当者

菅野 勇人

宅地建物取引士

セットアップオフィスから一般的なオフィスまで、多種多様なオフィスビルの魅力や特徴を熟知したオフィス物件マニア。

スタートアップ企業の移転支援経験が多く、そこで得た知見を活かし、お客様の理想のオフィス探しを全力でサポートいたします。

この物件を問い合わせる
物件概要
物件番号 s-2306
物件名 ARZ芝公園ビル
所在地 東京都港区芝2丁目23番1号
最寄り駅 都営地下鉄三田線
芝公園駅 徒歩5分

都営地下鉄三田線
三田駅 徒歩6分

JR 田町駅
徒歩10分
階数 2階
面積 45.88坪(151.68㎡)
推奨席数 25席~34席
物件タイプ セットアップオフィス
会議室数 6名掛け会議室×1室
8名掛け会議室×1室
テレカンブース数 2室
竣工年 1987年3月
特徴・設備 # 敷金無し # テレカンブース付き # 会議室付き # キッチン有り # 男女別トイレ # 2路線利用可 # 最寄り駅から徒歩5分以内
募集条件
月額賃料@坪単価 1,238,760円(@27,000円)
敷金 / 保証金 最大0ヶ月
償却
礼金
更新料 / 再契約料 新賃料の1ヶ月分
入居可能日 25年11月上旬以降(予定)
契約期間 2年
原状回復有無
保証契約

※表示価格は税抜き価格です。

この物件を問い合わせる

物件のお問い合わせフォーム

オフィス物件を探す

キーワード
カテゴリー

Get In Touch!!

希望条件が決まっていなくても、オフィス移転のプロが要件定義からご一緒させていただきます。まずはお気軽にご相談くださいませ。

お電話でのお問い合わせはこちら

03-6858-3030

平日
9:00~18:00