Powered by
ホーム 港区の居抜き・セットアップオフィスを探す 【敷金0・原状回復不要】田町駅徒歩5分の内装付き新築セットアップオフィス

【敷金0・原状回復不要】田町駅徒歩5分の内装付き新築セットアップオフィス

募集中
当社管理物件
エリア:港区芝浦
広さ:30〜60坪
席数:10〜19席
公開日:2026.01.05

物件のご紹介

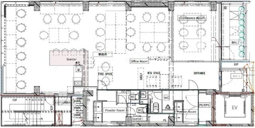
田町駅から徒歩5分、2026年1月竣工予定の新築セットアップオフィス『CADREtamachi(キャドレ田町)』5階のご紹介です。

ご紹介する5階区画は35.41坪(117.09m²)の広さで、最大20名規模の成長フェーズの企業に最適なレイアウトとなっています。落ち着いた雰囲気を感じる執務室の内装に加え、6名掛けの会議室を標準装備。新築ならではの快適な環境で業務をスタートできます。

指定保証会社の利用により敷金が不要となるだけでなく、原状回復義務も免除となっているため、初期費用と退去時費用を抑えることができ、特に資金計画を重視するスタートアップやベンチャー企業のオフィス移転先としてもおすすめできます。

2026年2月からご入居開始となりますので、ご関心がございましたら、ぜひお早めにお問い合わせください。

おすすめポイント

  1. 敷金最大0ヶ月・原状回復義務無しで、移転コストを大幅削減
  2. シックな内装と会議室を備えた新築セットアップオフィス
  3. ビジネスエリアとして人気の高い田町エリア、駅徒歩5分の好立地

同ビル別フロアの物件はこちら

菅野 勇人

営業担当者

菅野 勇人

宅地建物取引士

セットアップオフィスから一般的なオフィスまで、多種多様なオフィスビルの魅力や特徴を熟知したオフィス物件マニア。

スタートアップ企業の移転支援経験が多く、そこで得た知見を活かし、お客様の理想のオフィス探しを全力でサポートいたします。

この物件を問い合わせる
物件概要
物件番号 s-2357
物件名 CADRE tamachi
所在地 東京都港区芝浦3-6-12
最寄り駅 JR 田町駅
徒歩5分

都営三田線
三田駅 徒歩8分

都営浅草線
三田駅 徒歩8分

ゆりかもめ
芝浦ふ頭駅 徒歩9分
階数 5階
面積 35.41坪(117.09m²)
推奨席数 16~20席
物件タイプ セットアップオフィス
会議室数 6名掛け会議室×1室
竣工年 2026年1月予定
特徴・設備 # 敷金無し # 原状回復免除 # 会議室付き # 男女別トイレ # 新築・築浅 # 2路線利用可 # 最寄り駅から徒歩5分以内
募集条件
月額賃料@坪単価 1,310,170円(坪37,000円)
敷金 / 保証金 最大0ヶ月
償却
礼金
更新料 / 再契約料 新賃料の1ヶ月分
入居可能日 2026年2月予定
契約期間 2年
原状回復有無
保証契約

※表示価格は税抜き価格です。

この物件を問い合わせる

物件のお問い合わせフォーム

オフィス物件を探す

キーワード
カテゴリー

Get In Touch!!

希望条件が決まっていなくても、オフィス移転のプロが要件定義からご一緒させていただきます。まずはお気軽にご相談くださいませ。

お電話でのお問い合わせはこちら

03-6858-3030

平日
9:00~18:00