Powered by
ホーム 港区の居抜き・セットアップオフィスを探す 【敷金最大0】港区麻布台エリア、モダンな内装デザインが魅力のセットアップオフィス

【敷金最大0】港区麻布台エリア、モダンな内装デザインが魅力のセットアップオフィス

募集終了
当社管理物件
エリア:港区麻布台
広さ:30〜60坪
席数:20〜39席
公開日:2025.10.01

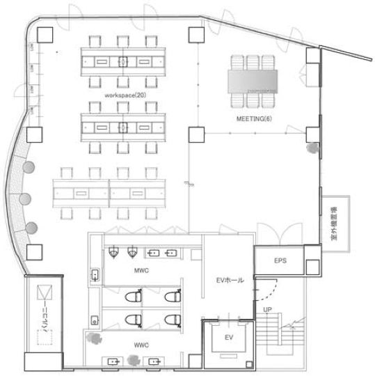
物件のご紹介

話題の「麻布台ヒルズ」や、スタートアップ・ベンチャー企業からも注目される大規模VC拠点「Tokyo Venture Capital Hub」にも近い港区麻布台エリアより、セットアップオフィス『VILLAGE AZABUDAI(ヴィラージュ麻布台)』をご紹介します。東京メトロ日比谷線「神谷町駅」から徒歩4分という好立地にあり、複数路線が利用可能でビジネスの機動力を高めます。

本物件は2022年に大規模リニューアルを実施済みで、ビル内部はもちろん、専有部についても、清潔感のあるモダンな内装に生まれ変わりました。特筆すべきは、最高天井高3,150mmを誇る、開放的な執務スペース。入り口付近の床はヘリンボーン(矢羽根模様)貼りで、デザイン性の高さを演出しており、アーチ型のドアや大きな室内窓が、空間のアクセントと広がりを生んでいます。

また、デザイン性の高さだけでなく、什器付きの6名用会議室があらかじめ設置されているため、内装工事の手間を減らして、スムーズに事業をスタートできるのも重要なポイントです。

加えて、【敷金最大0ヶ月】という破格の条件設定となっており、移転時のイニシャルコストを最小限に抑えたいスタートアップ企業様には理想的な環境です。 ご関心がございましたら、ぜひお早めにお問い合わせください。

※掲載写真は他フロアを撮影した参考写真です。

おすすめポイント

  1. 敷金最大0ヶ月で、移転にかかる初期コストを圧縮
  2. 麻布台の落ち着いた環境と利便性を両立した好立地
  3. 2022年リニューアル済み、天井高3m超の開放的で清潔な執務空間
  4. 内装工事の手間を省ける便利なセットアップオフィス
菅野 勇人

営業担当者

菅野 勇人

宅地建物取引士

セットアップオフィスから一般的なオフィスまで、多種多様なオフィスビルの魅力や特徴を熟知したオフィス物件マニア。

スタートアップ企業の移転支援経験が多く、そこで得た知見を活かし、お客様の理想のオフィス探しを全力でサポートいたします。

この物件を問い合わせる
物件概要
物件番号 s-2423
物件名 VILLAGE AZABUDAI
所在地 東京都港区麻布台1-11-5​
最寄り駅 東京メトロ日比谷線
神谷町駅 徒歩4分

都営大江戸線
赤羽橋駅 徒歩10分
階数 9階
面積 49.22坪(162.71㎡)
推奨席数 20~24席
物件タイプ セットアップオフィス
会議室数 6名掛け会議室×1
竣工年 1991年1月
特徴・設備 # 敷金無し # 会議室付き # 男女別トイレ # スケルトン天井 # 2路線利用可 # 最寄り駅から徒歩5分以内
募集条件
月額賃料@坪単価 相談
敷金 / 保証金 最大0ヶ月
償却
礼金
更新料 / 再契約料
入居可能日 即日
契約期間 年相談(定借)
原状回復有無
保証契約

※表示価格は税抜き価格です。

この物件を問い合わせる

物件のお問い合わせフォーム

オフィス物件を探す

キーワード
カテゴリー

Get In Touch!!

希望条件が決まっていなくても、オフィス移転のプロが要件定義からご一緒させていただきます。まずはお気軽にご相談くださいませ。

お電話でのお問い合わせはこちら

03-6858-3030

平日
9:00~18:00