Powered by
ホーム 港区の居抜き・セットアップオフィスを探す 溜池山王駅徒歩1分!スタイリッシュで洗練された内装デザインが魅力のセットアップオフィス

溜池山王駅徒歩1分!スタイリッシュで洗練された内装デザインが魅力のセットアップオフィス

募集中
当社管理物件
エリア:港区赤坂
広さ:〜30坪
席数:10〜19席
公開日:2026.04.08

物件のご紹介

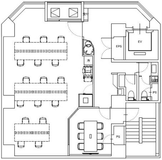
東京メトロ銀座線・南北線の「溜池山王駅」から徒歩わずか1分、赤坂エリアの好立地に位置するセットアップオフィス『ウェイタワーズ 2階』をご紹介します。

ご紹介の区画は約28坪のセットアップオフィスで、最大16名規模でのご利用を想定。グレーを基調とした、シンプルながらもスタイリッシュで洗練された印象の空間デザインが魅力です。

ガラス張りの会議室1室とテレカンブース1室をあらかじめ備えており、移転コストや工事期間を削減したい、スタートアップ・ベンチャー企業様に最適です。

ご関心をお持ちの場合は、ぜひお早めにお問い合わせください。

※掲載写真は他フロアを撮影した参考写真です。

おすすめポイント

  1. 溜池山王駅徒歩1分の交通至便な立地
  2. 会議室・テレカンブース完備の便利なセットアップオフィス
  3. グレーを基調とした、シンプルながらスタイリッシュな内装
菅野 勇人

営業担当者

菅野 勇人

宅地建物取引士

セットアップオフィスから一般的なオフィスまで、多種多様なオフィスビルの魅力や特徴を熟知したオフィス物件マニア。

スタートアップ企業の移転支援経験が多く、そこで得た知見を活かし、お客様の理想のオフィス探しを全力でサポートいたします。

この物件を問い合わせる
物件概要
物件番号 s-2515
物件名 ウェイタワーズ
所在地 東京都港区赤坂2-9-2
最寄り駅 東京メトロ銀座線・南北線
溜池山王駅 徒歩1分

東京メトロ千代田線
赤坂駅 徒歩5分

東京メトロ千代田線
国会議事堂前駅 徒歩7分

東京メトロ丸ノ内線
赤坂見附駅 徒歩9分
階数 2階
面積 28.68坪(94.83㎡)
推奨席数 14~16席
物件タイプ セットアップオフィス
会議室数 6名掛け会議室×1室
テレカンブース数 1室
竣工年 2009年11月
特徴・設備 # テレカンブース付き # 会議室付き # スケルトン天井 # 男女別トイレ # 2路線利用可 # 最寄り駅から徒歩5分以内
募集条件
月額賃料@坪単価 860,400円(坪30,000円)
敷金 / 保証金 5,162,400円(6ヶ月)
償却
礼金
更新料 / 再契約料
入居可能日 相談
契約期間 2年
原状回復有無
保証契約

※表示価格は税抜き価格です。

この物件を問い合わせる

物件のお問い合わせフォーム

オフィス物件を探す

キーワード
カテゴリー

Get In Touch!!

希望条件が決まっていなくても、オフィス移転のプロが要件定義からご一緒させていただきます。まずはお気軽にご相談くださいませ。

お電話でのお問い合わせはこちら

03-6858-3030

平日
9:00~18:00