Powered by
ホーム 渋谷区の居抜き・セットアップオフィスを探す 【敷金最大0・原状回復不要】北参道駅徒歩3分の小規模向けフルセットアップオフィス

【敷金最大0・原状回復不要】北参道駅徒歩3分の小規模向けフルセットアップオフィス

募集終了
エリア:渋谷区千駄ヶ谷
広さ:〜30坪
席数:10席未満
公開日:2024.11.26

物件のご紹介

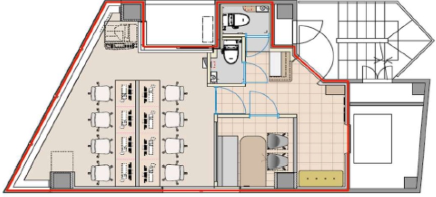
『M.B+ JINGU KITASANDO』は、東京メトロ副都心線「北参道駅」徒歩3分、JR「代々木駅」からも徒歩5分の、渋谷区千駄ヶ谷の大通り沿いに位置する、内装・家具付きのフルセットアップオフィスです。

小規模スタートアップ向けの8名利用を想定した執務スペースに加え、4名用の会議室を1室完備。1フロア1テナント仕様のため、プライバシー性の高い独立したオフィス空間を確保できる点も魅力です。

特に注目すべきは、保証会社の利用により【敷金最大0ヶ月】、さらに【原状回復不要】でコストを大幅に抑えられる点です。移転時の初期費用だけでなく、退去時のコストも大幅に削減できるため、成長フェーズにあるスタートアップ企業様にとって非常に魅力的な契約条件となっています。

スピーディーに、コストを抑えた移転を実現したい企業様に最適な物件です。人気エリアの物件となりますので、ご検討の場合は、ぜひお早めにお問い合わせください。

おすすめポイント

  1. 【敷金最大0・原状回復不要】で、移転・退去コストを大幅に削減可能
  2. 「北参道駅」徒歩3分、「代々木駅」徒歩5分の好アクセス
  3. 家具・什器に加え4名用会議室も完備したフルセットアップオフィス
  4. プライバシー性の高い人気の「1フロア1テナント」仕様
菅野 勇人

営業担当者

菅野 勇人

宅地建物取引士

セットアップオフィスから一般的なオフィスまで、多種多様なオフィスビルの魅力や特徴を熟知したオフィス物件マニア。

スタートアップ企業の移転支援経験が多く、そこで得た知見を活かし、お客様の理想のオフィス探しを全力でサポートいたします。

この物件を問い合わせる
物件概要
物件番号 fs-3229
物件名 M.BALANCE+
JINGU KITASANDO
所在地 東京都渋谷区千駄ヶ谷4-27-5
最寄り駅 東京メトロ副都心線
北参道駅 徒歩3分

JR 代々木駅
徒歩5分

都営大江戸線
代々木駅 徒歩6分
面積 11.6坪(38.35㎡)
推奨席数 8席
物件タイプ フルセットアップオフィス
会議室数 4名掛け会議室×1室
竣工年 1998年6月
特徴・設備 # 敷金無し # 原状回復免除 # 家具・什器付き # 会議室付き # 男女別トイレ # 2路線利用可 # 最寄り駅から徒歩5分以内
募集条件
月額賃料@坪単価 360,000円(@31,034円)
敷金 / 保証金 最大0ヶ月
償却
礼金
更新料 / 再契約料 賃料の1ヶ月分
入居可能日 2025年12月頃
契約期間 2年
原状回復有無
保証契約

※表示価格は税抜き価格です。

この物件を問い合わせる

物件のお問い合わせフォーム

オフィス物件を探す

キーワード
カテゴリー

Get In Touch!!

希望条件が決まっていなくても、オフィス移転のプロが要件定義からご一緒させていただきます。まずはお気軽にご相談くださいませ。

お電話でのお問い合わせはこちら

03-6858-3030

平日
9:00~18:00