Powered by
ホーム 渋谷区の居抜き・セットアップオフィスを探す 【敷金0・原状回復不要】渋谷駅徒歩6分!共用部充実のWi-Fi付フルセットアップオフィス

【敷金0・原状回復不要】渋谷駅徒歩6分!共用部充実のWi-Fi付フルセットアップオフィス

募集中
当社貸主物件
仲介手数料無料
エリア:渋谷区渋谷
広さ:30〜60坪
席数:20〜39席
公開日:2026.04.01

物件のご紹介

渋谷駅徒歩6分、渋谷にありながら落ち着いた雰囲気が漂う”渋谷2丁目エリア”に位置するフルセットアップオフィス『S-FRONTIER渋谷青山通り』のご紹介です。

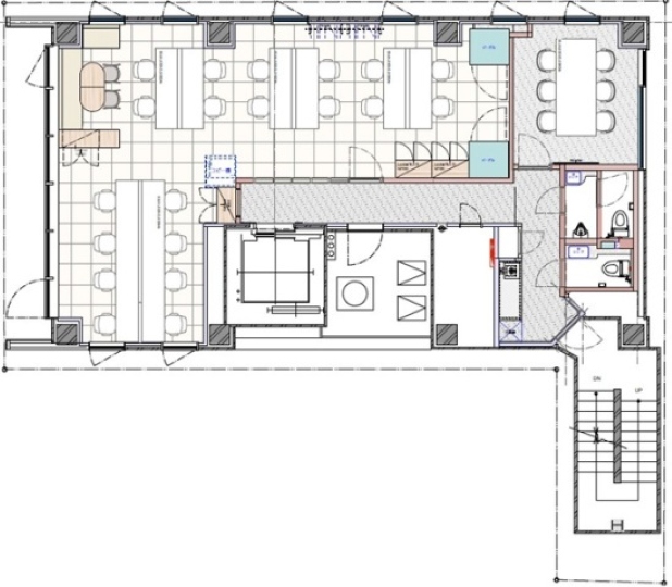
34.17坪・推奨20席規模の専有部は、スタートアップやベンチャー企業の成長フェーズに最適なレイアウトになっています。スケルトン天井を採用し、木目調の家具を組み合わせた開放的で温かみのある空間デザインが魅力です。

内装付きオフィスとして、専有部内に会議室1室とテレカンブース2室を完備しているだけでなく、1階共用部の会議室2室・テレカンブース6室も利用可能で、WEB会議や来客対応にも余裕を持って臨める環境が整っています。Wi-Fi完備のため、入居当日からPC1台で業務を開始できるのも大きなメリットです。

敷金最大0ヶ月・原状回復不要という条件により、初期費用を最小限に抑えながら、質の高いオフィス環境を手に入れることができます。ご興味をお持ちの場合は、ぜひお気軽にお問い合わせください。

おすすめポイント

  1. 当社貸主物件のため【仲介手数料不要】
  2. 敷金最大0ヶ月・原状回復不要で、移転コストを大幅に削減
  3. 専有部と共用部に豊富な会議室・テレカンブースを備え、多様な働き方に対応
  4. スケルトン天井と木目調の家具が織りなす、開放的なオフィス空間
  5. 人気の渋谷エリア、渋谷駅徒歩6分の好立地

同ビル別フロアの物件はこちら

菅野 勇人

営業担当者

菅野 勇人

宅地建物取引士

セットアップオフィスから一般的なオフィスまで、多種多様なオフィスビルの魅力や特徴を熟知したオフィス物件マニア。

スタートアップ企業の移転支援経験が多く、そこで得た知見を活かし、お客様の理想のオフィス探しを全力でサポートいたします。

この物件を問い合わせる
物件概要
物件番号 fs-3420
物件名 S-FRONTIER渋谷青山通り
所在地 東京都渋谷区渋谷2-10-15
最寄り駅 渋谷駅 徒歩6分
階数 8階
面積 34.17坪
推奨席数 20席
物件タイプ フルセットアップオフィス
会議室数 6名掛け会議室×1室 (専有部)
6名掛け会議室×2(1階共用部)
テレカンブース数 専有部×2室
共用部×6室
竣工年 2014年8月
特徴・設備 # 敷金無し # 原状回復免除 # 家具・什器付き # テレカンブース付き # 会議室付き # Wi-Fi完備 # 男女別トイレ # スケルトン天井 # 2路線利用可
募集条件
月額賃料@坪単価 1,640,160円
敷金 / 保証金 最大0ヶ月
償却
礼金
更新料 / 再契約料
入居可能日 即日
契約期間 2年
原状回復有無
保証契約

※表示価格は税抜き価格です。

この物件を問い合わせる

物件のお問い合わせフォーム

オフィス物件を探す

キーワード
カテゴリー

Get In Touch!!

希望条件が決まっていなくても、オフィス移転のプロが要件定義からご一緒させていただきます。まずはお気軽にご相談くださいませ。

お電話でのお問い合わせはこちら

03-6858-3030

平日
9:00~18:00