Powered by
ホーム 渋谷区の居抜き・セットアップオフィスを探す 明治神宮前駅徒歩2分、流行の発信地「原宿」のセットアップオフィス

明治神宮前駅徒歩2分、流行の発信地「原宿」のセットアップオフィス

募集終了
当社管理物件
エリア:渋谷区神宮前
広さ:30〜60坪
席数:10〜19席
公開日:2024.11.26

物件のご紹介

『オンデンフラット202号室』は、東京メトロ「明治神宮前駅」から徒歩2分、JR「原宿駅」から徒歩3分と、トレンドの発信地【原宿】エリアへアクセス抜群のセットアップオフィスです。

オフィスの位置する「神宮前1丁目」は竹下通りの賑わいと閑静な住宅街が共存するエリア。美容室をはじめ、ファッションやデザイン関連の企業が集積し、創造性を高める、クリエイティビティを感じられる環境となっています。

『オンデンフラット202号室』は、竹下通りから逸れた閑静な住宅街側のエリアにあり、高級感のあるホワイトを基調とした外観に、オープンカフェのようなベランダスペースを備え、温かみのある木目調フローリングの内装が調和したデザインが特徴。2階表記とはなっておりますが路面店舗区画となるため、大きな窓から自然光がふんだんに差し込み、明るい雰囲気の中で業務に就くことができます。
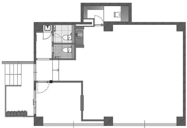
間仕切りを活用した柔軟性の高いオフィスレイアウトで、社員のワークスペース以外にも、在庫保管庫やVIPルームなど、多様な用途に対応可能。来客と従業員の動線を分ける設計も、使い勝手を高めるポイントとなっています。6名収容可能な会議室とテレカンブースも設置済で、チームでの共同作業から個人の集中業務まで幅広くサポートします。

人気エリア「原宿」のクリエイティビティ溢れるこちらの物件。より詳しい情報や内覧については、是非お気軽にお問い合わせください

おすすめのポイント

  1. 会議室・テレカンブース設置済み、トレンドの発信地【原宿】のセットアップオフィス
  2. 竹下通りの賑わいと閑静な住宅街が共存するクリエイティビティを感じられるエリア
  3. 間仕切りを活用した柔軟性の高いオフィスレイアウト
  4. 大きな窓から自然光が差し込む、明るい路面区画
菅野 勇人

営業担当者

菅野 勇人

宅地建物取引士

セットアップオフィスから一般的なオフィスまで、多種多様なオフィスビルの魅力や特徴を熟知したオフィス物件マニア。

スタートアップ企業の移転支援経験が多く、そこで得た知見を活かし、お客様の理想のオフィス探しを全力でサポートいたします。

この物件を問い合わせる
物件概要
物件番号 s-2066
物件名 オンデンフラット 202号室
所在地 東京都渋谷区神宮前1-10-9
最寄り駅 JR原宿駅
徒歩3分

東京メトロ千代田線
明治神宮前駅 徒歩2分

東京メトロ副都心線
明治神宮前駅 徒歩2分
面積 30.28坪 (100.10m²)
推奨席数 19席
物件タイプ セットアップオフィス
会議室数 6名掛け会議室×1
テレカンブース数 1室
竣工年 1993年1月
特徴・設備 # テレカンブース付き # 会議室付き # 屋上 / テラス有り # 男女別トイレ # リノベーション済み # 2路線利用可 # 最寄り駅から徒歩5分以内
募集条件
月額賃料@坪単価 1,211,200円(@40,000円)
敷金 / 保証金 7,267,200円(6ヶ月)
償却
礼金
更新料 / 再契約料
入居可能日 年相談(定借)
原状回復有無
保証契約

※表示価格は税抜き価格です。

この物件を問い合わせる

物件のお問い合わせフォーム

オフィス物件を探す

キーワード
カテゴリー

Get In Touch!!

希望条件が決まっていなくても、オフィス移転のプロが要件定義からご一緒させていただきます。まずはお気軽にご相談くださいませ。

お電話でのお問い合わせはこちら

03-6858-3030

平日
9:00~18:00