Powered by
ホーム 渋谷区の居抜き・セットアップオフィスを探す 恵比寿駅徒歩9分、仲介手数料不要のリニューアル済みセットアップオフィス

恵比寿駅徒歩9分、仲介手数料不要のリニューアル済みセットアップオフィス

募集終了
当社貸主物件
仲介手数料無料
エリア:渋谷区
広さ:60〜80坪
席数:20〜39席
公開日:2024.11.26

物件のご紹介


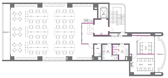
広尾エリアに登場した「越山LKビル」は、JR恵比寿駅から徒歩9分の便利なロケーションです。東京メトロ日比谷線の広尾駅からも徒歩9分と2路線利用できて、仕事移動や通勤にアクセス抜群の立地となっております。周囲にはおしゃれなカフェやレストランが多く、働く人々がランチや仕事終わりの食事でリフレッシュできる環境が整っています。2024年2月にリニューアル工事が完了しており、貸室内は6名用と8名用の会議室2室が完備されております。執務室は36名のご利用を推奨しておりますが、座席のレイアウト変更をすれば人員増加時も柔軟に対応できる空間にすることができます。

また当ビルはトイレ清掃を週2回ビル側で実施しており、メンテナンスも充実しているので従業員様の掃除の手間をなくし業務だけに集中できる環境を提供します。仲介手数料無しで、今すぐ入居可能です。ぜひ一度ご内覧ください!

 

おすすめポイント

  1. 仲介手数料無料!初期費用を抑えられるセットアップオフィス
  2. 恵比寿駅徒歩9分、複数路線が利用できてアクセス抜群
  3. 6名用と8名用会議室を2室完備、座席のレイアウト変更も可能で柔軟性のある間取り
  4. 2024年2月リニューアル工事完了!解放感のある内装が特徴的
菅野 勇人

営業担当者

菅野 勇人

宅地建物取引士

セットアップオフィスから一般的なオフィスまで、多種多様なオフィスビルの魅力や特徴を熟知したオフィス物件マニア。

スタートアップ企業の移転支援経験が多く、そこで得た知見を活かし、お客様の理想のオフィス探しを全力でサポートいたします。

この物件を問い合わせる
物件概要
物件番号 s-2112
物件名 越山LKビル
所在地 東京都渋谷区広尾1-10-4
最寄り駅 JR恵比寿駅
徒歩9分

東京メトロ日比谷線
広尾駅 徒歩9分

東京メトロ日比谷線
恵比寿駅 徒歩10分
階数 3F
面積 68.35坪 / 225.96m²
推奨席数 36席
物件タイプ セットアップオフィス
会議室数 6名掛け会議室×1
8名掛け会議室×1
テレカンブース数
竣工年 1989年3月
特徴・設備 # 会議室付き # 男女別トイレ # 2路線利用可
募集条件
月額賃料@坪単価 ¥1,572,050円@23,000円 / 坪
敷金 / 保証金 4,716,150円(3ヶ月)
償却
礼金
更新料 / 再契約料 新賃料の1ヶ月分
入居可能日 即日
契約期間 2年
原状回復有無
保証契約

※表示価格は税抜き価格です。

この物件を問い合わせる

物件のお問い合わせフォーム

オフィス物件を探す

キーワード
カテゴリー

Get In Touch!!

希望条件が決まっていなくても、オフィス移転のプロが要件定義からご一緒させていただきます。まずはお気軽にご相談くださいませ。

お電話でのお問い合わせはこちら

03-6858-3030

平日
9:00~18:00