Powered by
ホーム 渋谷区の居抜き・セットアップオフィスを探す 【敷金最大0】恵比寿/渋谷駅いずれも徒歩圏内の内装付きセットアップオフィス

【敷金最大0】恵比寿/渋谷駅いずれも徒歩圏内の内装付きセットアップオフィス

募集中
エリア:渋谷区東
広さ:〜30坪
席数:10〜19席
公開日:2025.12.23

物件のご紹介

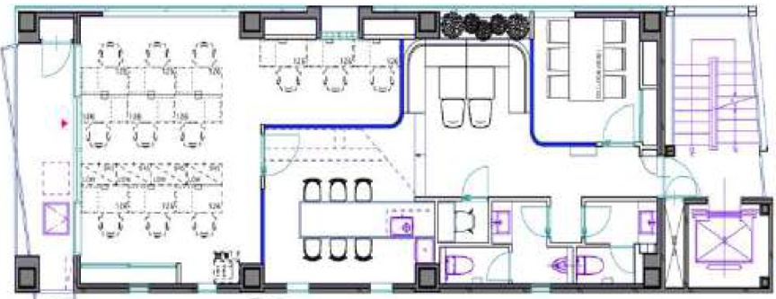
恵比寿駅近く、内装付きでスタートアップ・ベンチャー企業様からも人気の高い、セットアップオフィス『JP-BASE SHIBUYA』をご紹介します。JR恵比寿駅から徒歩9分、渋谷駅も徒歩圏内という、利便性に優れた立地が魅力です。

内装はモノトーンを基調とした洗練された雰囲気で、適度に配置されたオフィスグリーンがリラックス効果をもたらし、集中力と創造性を両立できるデザインとなっています。

27.78坪の広さに推奨12席を配置し、執務スペースのほか、6名掛けの会議室と集中作業に最適なテレカンブース1室を完備。開放感あふれる吹き抜けのラウンジスペースも備え、自然とコミュニケーションも生まれやすい空間です。

保証会社の利用により敷金を最大0ヶ月に抑えられるため、移転に伴う初期費用を大幅に削減できる点も大きなポイントです。ご関心をお持ちの場合は、ぜひお気軽にお問い合わせください。

おすすめポイント

  1. 敷金最大0ヶ月で、移転コストを大幅削減
  2. 恵比寿駅徒歩9分、渋谷駅も徒歩圏内の都心の好立地
  3. 会議室・テレカンブースを各1室備えた、内装付きセットアップオフィス
  4. モノトーン基調の洗練された内装デザイン
菅野 勇人

営業担当者

菅野 勇人

宅地建物取引士

セットアップオフィスから一般的なオフィスまで、多種多様なオフィスビルの魅力や特徴を熟知したオフィス物件マニア。

スタートアップ企業の移転支援経験が多く、そこで得た知見を活かし、お客様の理想のオフィス探しを全力でサポートいたします。

この物件を問い合わせる
物件概要
物件番号 s-2269
物件名 JP-BASE渋谷
所在地 東京都渋谷区東2-17-9
最寄り駅 JR 恵比寿駅
徒歩9分

JR 渋谷駅
徒歩11分
階数 5階
面積 27.78坪(91.86㎡)
推奨席数 12席
物件タイプ セットアップオフィス
会議室数 6名掛け会議室×1室
テレカンブース数 1室
竣工年 1985年12月
特徴・設備 # 敷金無し # テレカンブース付き # 会議室付き # 男女別トイレ # 2路線利用可
募集条件
月額賃料@坪単価 1,012,680円
敷金 / 保証金 最大0ヶ月
償却
礼金
更新料 / 再契約料 新賃料の1ヶ月分
入居可能日 2026年1月15日
契約期間 2年
原状回復有無
保証契約

※表示価格は税抜き価格です。

この物件を問い合わせる

物件のお問い合わせフォーム

オフィス物件を探す

キーワード
カテゴリー

Get In Touch!!

希望条件が決まっていなくても、オフィス移転のプロが要件定義からご一緒させていただきます。まずはお気軽にご相談くださいませ。

お電話でのお問い合わせはこちら

03-6858-3030

平日
9:00~18:00