Powered by
ホーム 渋谷区の居抜き・セットアップオフィスを探す 【敷金最大0】恵比寿駅徒歩7分、渋谷駅・代官山駅も徒歩圏内のシンプルモダンなセットアップオフィス

【敷金最大0】恵比寿駅徒歩7分、渋谷駅・代官山駅も徒歩圏内のシンプルモダンなセットアップオフィス

募集終了
当社管理物件
エリア:渋谷区東
広さ:60〜80坪
席数:20〜39席
公開日:2024.11.26

物件のご紹介

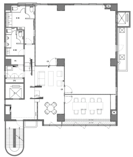
スタートアップ企業からも人気の高い恵比寿・渋谷エリアに、内装付きのセットアップオフィス『TBCビル』が登場しました。恵比寿駅から徒歩7分、さらに代官山駅、渋谷駅も徒歩圏内という交通至便な立地です。

ご紹介の区画は2階の62.06坪(205.18m²)、推奨席数は20〜30席で、成長フェーズの企業様に最適なワークスペースを提供します。2020年12月にリニューアルが施された内装は、シンプルながらモダンで洗練されたデザインが魅力となっており、天井高2,950mmの開放感のある執務スペースに加え、ゆとりある会議室1室も完備されています。

敷金最大0ヶ月という好条件で移転コストを大幅に削減でき、費用面を重視される企業様にもおすすめの物件となっています。人気が出ることが予想されますので、ご関心がございましたら、ぜひお早めにお問い合わせください。

おすすめポイント

  1. 敷金最大0ヶ月で、初期費用を大幅に削減
  2. 恵比寿・代官山・渋谷の3駅が徒歩圏内
  3. シンプルモダンな内装デザインが魅力のセットアップオフィス
菅野 勇人

営業担当者

菅野 勇人

宅地建物取引士

セットアップオフィスから一般的なオフィスまで、多種多様なオフィスビルの魅力や特徴を熟知したオフィス物件マニア。

スタートアップ企業の移転支援経験が多く、そこで得た知見を活かし、お客様の理想のオフィス探しを全力でサポートいたします。

この物件を問い合わせる
物件概要
物件番号 s-2351
物件名 TBCビル
所在地 東京都渋谷区東2-27-10
最寄り駅 東京メトロ日比谷線
恵比寿駅 徒歩7分

JR 恵比寿駅
徒歩8分

東急東横線
代官山駅 徒歩9分

JR 渋谷駅
徒歩12分

東急東横線
渋谷駅 徒歩12分
階数 2階
面積 62.06坪(205.18m²)
推奨席数 20~30席
物件タイプ セットアップオフィス
会議室数 会議室×1室
竣工年 1984年9月
特徴・設備 # 敷金無し # 会議室付き # 男女別トイレ # 2路線利用可
募集条件
月額賃料@坪単価 1,737,680円(坪28,000円)
敷金 / 保証金 最大0ヶ月
償却
礼金
更新料 / 再契約料
入居可能日 2026年5月1日予定
契約期間 2年
原状回復有無
保証契約

※表示価格は税抜き価格です。

この物件を問い合わせる

物件のお問い合わせフォーム

オフィス物件を探す

キーワード
カテゴリー

Get In Touch!!

希望条件が決まっていなくても、オフィス移転のプロが要件定義からご一緒させていただきます。まずはお気軽にご相談くださいませ。

お電話でのお問い合わせはこちら

03-6858-3030

平日
9:00~18:00