Powered by
ホーム 品川・目黒区の居抜き・セットアップオフィスを探す 五反田駅徒歩5分!Wi-Fi完備の小規模フルセットアップオフィス

五反田駅徒歩5分!Wi-Fi完備の小規模フルセットアップオフィス

募集終了
当社管理物件
エリア:品川・目黒区
広さ:〜30坪
席数:10席未満
公開日:2024.11.26

物件のご紹介

『NOVEL WORK Gotanda』は、都営浅草線五反田駅、高輪台駅からそれぞれ徒歩5分、JR五反田駅からも徒歩8分と、複数路線利用可能でアクセス抜群。Wi-Fi完備で入居後スムーズに事業を開始することができる、スピード感を重視するスタートアップ企業様に最適なフルセットアップオフィスです。

ビジネスエリアとしても歴史の長い五反田エリアは、近年では「五反田バレー」としても知られ、品川区支援のもと、ベンチャーやスタートアップ企業の集積する活気あふれるエリアへと変化を遂げています。同時に、従来の五反田らしさを感じる多彩な飲食店街や商業施設も充実し、ワークライフバランスのとれた、快適なビジネス環境が魅力です。

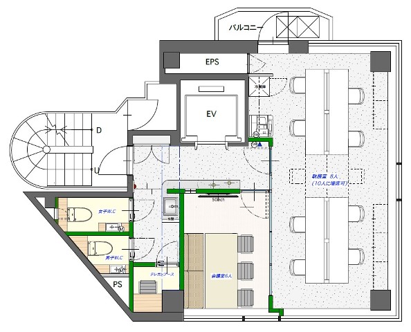
『NOVEL WORK Gotanda』のオフィス内部は、3面採光が取れる明るく開放感のある空間。推奨人数約8名のコンパクト空間ながら、6名掛けの什器付き会議室やテレカンブースを完備し、スムーズなビジネスコミュニケーションをサポートする、機能性の高いオフィスデザインが特徴となっています。
専有部のみならず、1階には共有ラウンジ、会議室(6名掛け×1)、テレカンブース(2室)も設置されており、多様なワークスタイルに対応可能です。

原状回復義務がなく(現状変更や破損等を除く)、敷金は1ヶ月分(与信状況により敷金の預託をお願いする場合あり)なため、移転コストを大きく抑えられるのも魅力。ご興味をお持ちの方は、ぜひお気軽にお問い合わせください。

おすすめのポイント

  1. コンパクトながらWi-Fi含む内装完備のフルセットアップオフィス
  2. スタートアップの集積地「五反田バレー」として知名度の高まるエリア
  3. 会議室・テレカンブース付の共用部もご利用可能

菅野 勇人

営業担当者

菅野 勇人

宅地建物取引士

セットアップオフィスから一般的なオフィスまで、多種多様なオフィスビルの魅力や特徴を熟知したオフィス物件マニア。

スタートアップ企業の移転支援経験が多く、そこで得た知見を活かし、お客様の理想のオフィス探しを全力でサポートいたします。

この物件を問い合わせる
物件概要
物件番号 fs-3100
物件名 NOVEL WORK Gotanda
所在地 東京都品川区東五反田4-7-27
最寄り駅 都営浅草線
五反田駅 徒歩5分

JR 五反田駅
徒歩8分

東急池上線
五反田駅 徒歩9分
階数 4F
面積 17.81坪 (58.88m²)
推奨席数 8席
物件タイプ フルセットアップオフィス
会議室数 6名掛け会議室×1
テレカンブース数 1室
竣工年 1988年2月
特徴・設備 # 原状回復免除 # 家具・什器付き # テレカンブース付き # 会議室付き # Wi-Fi完備 # 共有ラウンジ有り # 男女別トイレ # リノベーション済み # 2路線利用可 # 最寄り駅から徒歩5分以内
募集条件
月額賃料@坪単価 520,000円(@-)
敷金 / 保証金 1ヶ月分
償却 賃料の1ヶ月分
礼金
更新料 / 再契約料
入居可能日 2025年3月27日予定
契約期間 2年
原状回復有無
保証契約

※表示価格は税抜き価格です。

この物件を問い合わせる

物件のお問い合わせフォーム

オフィス物件を探す

キーワード
カテゴリー

Get In Touch!!

希望条件が決まっていなくても、オフィス移転のプロが要件定義からご一緒させていただきます。まずはお気軽にご相談くださいませ。

お電話でのお問い合わせはこちら

03-6858-3030

平日
9:00~18:00