Powered by
ホーム 品川・目黒区の居抜き・セットアップオフィスを探す 『五反田バレー』の内装家具付き小規模フルセットアップオフィス

『五反田バレー』の内装家具付き小規模フルセットアップオフィス

募集終了
当社貸主物件
仲介手数料無料
エリア:品川・目黒区
広さ:〜30坪
席数:10〜19席
公開日:2024.11.26

物件のご紹介

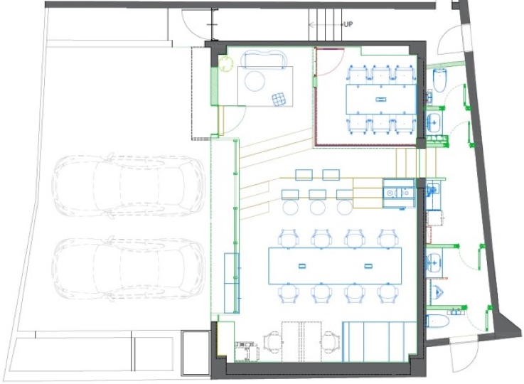
『THE GATE GOTANDA EAST(1階N区画)』は、スタートアップ注目の『五反田バレー』に位置する、内装家具付きのフルセットアップオフィスです。

JR五反田駅からは徒歩6分、浅草線の利用も可能なため、羽田空港へのアクセスもしやすい環境です。

内装は2025年1月にセットアップオフィスとしてリニューアル。10名規模のコンパクトながら機能性を重視して設計された空間には、家具付き執務スペースに加え、6名掛けの会議室とテレカンブースを各1室完備。移転後すぐにビジネスを再開できる環境が整っています。

『五反田バレー』という、スタートアップが集積するエリアに位置することで、ビジネスネットワークの構築や人材採用においても魅力のあるこちらの物件。即日入居可能なため、急ぎのオフィス移転ニーズにも対応できます。内覧のご相談など、ぜひお問い合わせください。

おすすめポイント

  1. 当社貸主物件のため仲介手数料不要
  2. スタートアップからも注目される『五反田バレー』エリアの物件
  3. 五反田駅徒歩6分、羽田空港へのアクセスもしやすい環境
  4. 8席の家具付き執務スペースに、会議室・テレカンブース完備のフルセットアップオフィス
  5. 即日入居可能で、スピーディーな事業展開をサポート
菅野 勇人

営業担当者

菅野 勇人

宅地建物取引士

セットアップオフィスから一般的なオフィスまで、多種多様なオフィスビルの魅力や特徴を熟知したオフィス物件マニア。

スタートアップ企業の移転支援経験が多く、そこで得た知見を活かし、お客様の理想のオフィス探しを全力でサポートいたします。

この物件を問い合わせる
物件概要
物件番号 fs-3188
物件名 THE GATE GOTANDA EAST
所在地 東京都品川区東五反田1-25-6
最寄り駅 東急池上線
五反田駅 徒歩5分

JR 五反田駅
徒歩6分

都営浅草線
五反田駅 徒歩7分

JR 大崎駅
徒歩9分
階数 1階N区画
面積 24.67坪(81.56㎡)
推奨席数 10席
物件タイプ フルセットアップオフィス
会議室数 6名掛け会議室×1
テレカンブース数 1室
竣工年 1986年11月
特徴・設備 # 家具・什器付き # テレカンブース付き # 会議室付き # 男女別トイレ # 2路線利用可 # 最寄り駅から徒歩5分以内
募集条件
月額賃料@坪単価 616,750円(坪25,000円)
敷金 / 保証金 2,467,000円(4ヶ月分)
償却
礼金
更新料 / 再契約料
入居可能日 即日
契約期間 2年
原状回復有無
保証契約

※表示価格は税抜き価格です。

この物件を問い合わせる

物件のお問い合わせフォーム

オフィス物件を探す

キーワード
カテゴリー

Get In Touch!!

希望条件が決まっていなくても、オフィス移転のプロが要件定義からご一緒させていただきます。まずはお気軽にご相談くださいませ。

お電話でのお問い合わせはこちら

03-6858-3030

平日
9:00~18:00