Powered by
ホーム 品川・目黒区の居抜き・セットアップオフィスを探す 【原状回復不要】五反田駅徒歩5分!眺望にも優れた、希少なメゾネット型フルセットアップオフィス

【原状回復不要】五反田駅徒歩5分!眺望にも優れた、希少なメゾネット型フルセットアップオフィス

募集中
当社管理物件
エリア:品川・目黒区
広さ:〜30坪
席数:10席未満
公開日:2026.04.17

物件のご紹介

都営浅草線五反田駅より徒歩5分、注目のフルセットアップオフィス『NOVEL WORK Gotanda』をご紹介します。

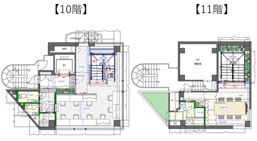
本物件は10階と11階を利用した希少なメゾネット物件です。室内は白を基調に木目を配したナチュラルモダンな内装で、清潔感と温かみが共存する空間に仕上がっています。10階部分は、2面の大きな窓からたっぷりと自然光が差し込む、明るく開放的なワークスペースで、最大9名での利用を想定。上層階のため、窓際の席からは良好な眺望も望むことができ、リフレッシュしながら業務に集中できる環境が整っています。

設備面では、テレカンブース1室に加え、室内の階段を上った先に6名掛けの会議スペースを完備しており、また、キッチンスペースや、オフィス物件では珍しいシャワースペースまで備えているため、入居後すぐ、機能的で快適な環境で業務をスタートできます。

退去時の原状回復義務がなく、敷金も税込賃料の1ヶ月分のみと、初期費用および移転コストを大幅に削減できる点も見逃せません。ご関心がございましたら、ぜひお早めにお問い合わせください。

おすすめポイント

  1. 敷金1ヶ月のみ・原状回復義務なしで、移転にかかるコストを抑えられる
  2. 五反田駅徒歩5分、浅草線利用で空港へのアクセスにも便利
  3. 家具付きですぐに業務を開始できるフルセットアップオフィス
  4. 珍しいシャワーブース付のオフィス物件
菅野 勇人

営業担当者

菅野 勇人

宅地建物取引士

セットアップオフィスから一般的なオフィスまで、多種多様なオフィスビルの魅力や特徴を熟知したオフィス物件マニア。

スタートアップ企業の移転支援経験が多く、そこで得た知見を活かし、お客様の理想のオフィス探しを全力でサポートいたします。

この物件を問い合わせる
物件概要
物件番号 fs-3386
物件名 NOVEL WORK Gotanda
所在地 東京都品川区東五反田4-7-27
最寄り駅 都営浅草線
五反田駅 徒歩5分

JR 五反田駅
徒歩8分

東急池上線
五反田駅 徒歩8分
階数 10階+11階
面積 27.94坪(92.37㎡)
推奨席数 10席未満
物件タイプ フルセットアップオフィス
会議室数 6名掛け会議室×1室
テレカンブース数 1室
竣工年 1988年2月
特徴・設備 # 敷金3ヶ月以下 # 原状回復免除 # 家具・什器付き # テレカンブース付き # 会議室付き # キッチン有り # 男女別トイレ # 2路線利用可 # 最寄り駅から徒歩5分以内
募集条件
月額賃料@坪単価 735,855円
敷金 / 保証金 税込賃料の1ヶ月分
償却 1ヶ月分
礼金
更新料 / 再契約料
入居可能日 2026年6月上旬予定
契約期間 2年
原状回復有無
保証契約

※表示価格は税抜き価格です。

この物件を問い合わせる

物件のお問い合わせフォーム

オフィス物件を探す

キーワード
カテゴリー

Get In Touch!!

希望条件が決まっていなくても、オフィス移転のプロが要件定義からご一緒させていただきます。まずはお気軽にご相談くださいませ。

お電話でのお問い合わせはこちら

03-6858-3030

平日
9:00~18:00