Powered by
ホーム 品川・目黒区の居抜き・セットアップオフィスを探す 不動前駅徒歩3分、敷金最大0ヶ月で初期費用を抑えられるセットアップオフィス

不動前駅徒歩3分、敷金最大0ヶ月で初期費用を抑えられるセットアップオフィス

募集終了
当社貸主物件
仲介手数料無料
エリア:品川・目黒区
広さ:30〜60坪
席数:20〜39席
公開日:2025.09.05

物件のご紹介

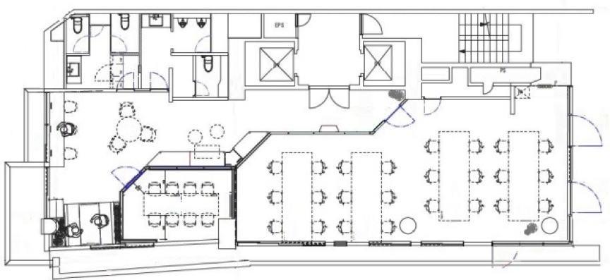
品川区西五反田、東急目黒線「不動前」駅から徒歩わずか3分の大通りに面した視認性の高いビル『ヘリオスビル』に、25年3月内装工事完了のセットアップオフィスが登場しました。2022年にはエントランスや外装もリニューアルされており、専有部だけでなく、ビル全体の洗練された印象も大きな魅力の一つです。

専有部には24席推奨の執務室に加え、什器付きの8名用会議室やカウンターデスク付のラウンジ、ファミレス席など、フレキシブルなワークスペースをあらかじめご用意。オフィス移転のコストと手間を大きく削減できます。
さらに【敷金最大0ヶ月】物件となっており、トータルで移転時の初期費用を大幅に抑えることが可能な、コストパフォーマンスの高い物件となっています。

五反田エリアでデザイン性・機能性とコストのバランスを兼ね備えたセットアップオフィスをお探しの企業様、中でも更なる事業成長を目指すスタートアップ企業様に向けて、ぜひおすすめしたい優良物件です。人気の出ることも予想されますので、ご検討の際は、お早めにお問い合わせください。

おすすめポイント

  1. 当社貸主物件のため仲介手数料不要
  2. 敷金最大0ヶ月・内装工事不要のセットアップオフィスで、移転コストを大幅削減
  3. 会議室に加え、ラウンジやファミレス席等、柔軟な働き方に対応したワークスペース
  4. 東急目黒線「不動前」駅徒歩3分の好アクセス、大通り沿いの視認性の高いビル
  5. リニューアル済みの洗練された外観と高級感あるエントランス共用部も魅力
菅野 勇人

営業担当者

菅野 勇人

宅地建物取引士

セットアップオフィスから一般的なオフィスまで、多種多様なオフィスビルの魅力や特徴を熟知したオフィス物件マニア。

スタートアップ企業の移転支援経験が多く、そこで得た知見を活かし、お客様の理想のオフィス探しを全力でサポートいたします。

この物件を問い合わせる
物件概要
物件番号 s-2121
物件名 ヘリオスビル
所在地 東京都品川区西五反田5-1-3
最寄り駅 東急目黒線
不動前駅 徒歩3分

東急池上線
大崎広小路駅 徒歩10分

JR五反田駅
徒歩11分
階数 10階
面積 51.07坪(168.85m²)
推奨席数 24席
物件タイプ セットアップオフィス
会議室数 8名掛け会議室×1
テレカンブース数
竣工年 1989年3月
特徴・設備 # 敷金無し # 会議室付き # 男女別トイレ # 2路線利用可 # 最寄り駅から徒歩5分以内
募集条件
月額賃料@坪単価 1,225,680円(坪24,000円)
敷金 / 保証金 最大0ヶ月
償却
礼金
更新料 / 再契約料
入居可能日 即日
契約期間 2年
原状回復有無
保証契約

※表示価格は税抜き価格です。

この物件を問い合わせる

物件のお問い合わせフォーム

オフィス物件を探す

キーワード
カテゴリー

Get In Touch!!

希望条件が決まっていなくても、オフィス移転のプロが要件定義からご一緒させていただきます。まずはお気軽にご相談くださいませ。

お電話でのお問い合わせはこちら

03-6858-3030

平日
9:00~18:00