Powered by
ホーム 品川・目黒区の居抜き・セットアップオフィスを探す 五反田駅徒歩7分|落ち着いた雰囲気のゆとりあるラウンジスペースを備えた、新装セットアップオフィス

五反田駅徒歩7分|落ち着いた雰囲気のゆとりあるラウンジスペースを備えた、新装セットアップオフィス

募集中
エリア:品川・目黒区
広さ:30〜60坪
席数:20〜39席
公開日:2026.01.19

物件のご紹介

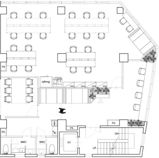
スタートアップ企業に人気の高い五反田エリアで、スムーズな移転を実現する内装付きセットアップオフィス、『第五花田ビル』のご紹介です。

約41坪の貸室内は、2025年11月に内装工事を完了したばかり。グリーンと木目を基調とした落ち着いた雰囲気のラウンジエリアには、ソファ席やカウンター席を備え、来客対応はもちろん、社員同士のコミュニケーションが生まれやすい環境が整っています。

その他、家具付きの6名用会議室も完備しており、初期費用を抑えつつ、入居後のスムーズな業務の開始が可能です。

資料請求や内覧希望については、ぜひお気軽にお問い合わせください。

おすすめポイント

  1. 五反田駅徒歩7分、大崎広小路駅徒歩5分の立地
  2. グリーンと木目を基調とした、落ち着いた雰囲気のラウンジエリア
  3. 会議室などの内装も完備した便利なセットアップオフィス
  4. 2025年11月に内装工事が完了したばかりの新しい内装
菅野 勇人

営業担当者

菅野 勇人

宅地建物取引士

セットアップオフィスから一般的なオフィスまで、多種多様なオフィスビルの魅力や特徴を熟知したオフィス物件マニア。

スタートアップ企業の移転支援経験が多く、そこで得た知見を活かし、お客様の理想のオフィス探しを全力でサポートいたします。

この物件を問い合わせる
物件概要
物件番号 s-2405
物件名 第五花田ビル
所在地 東京都品川区西五反田7-11-1
最寄り駅 東急池上線
大崎広小路駅 徒歩5分

JR 五反田駅
徒歩7分

都営浅草線
五反田駅 徒歩7分

東急池上線
五反田駅 徒歩8分

JR 大崎駅
徒歩12分
階数 4階
面積 40.90坪(135.21㎡)
推奨席数 16~22席
物件タイプ セットアップオフィス
会議室数 6名掛け会議室×1室
竣工年 1988年1月
特徴・設備 # 会議室付き # 男女別トイレ # 2路線利用可 # 最寄り駅から徒歩5分以内
募集条件
月額賃料@坪単価 940,700円(坪23,000円)
敷金 / 保証金 5,153,400円(6ヶ月)
償却 賃料の2ヶ月分
礼金
更新料 / 再契約料
入居可能日 即日
契約期間 2年
原状回復有無
保証契約

※表示価格は税抜き価格です。

この物件を問い合わせる

物件のお問い合わせフォーム

オフィス物件を探す

キーワード
カテゴリー

Get In Touch!!

希望条件が決まっていなくても、オフィス移転のプロが要件定義からご一緒させていただきます。まずはお気軽にご相談くださいませ。

お電話でのお問い合わせはこちら

03-6858-3030

平日
9:00~18:00