Powered by
ホーム 品川・目黒区の居抜き・セットアップオフィスを探す 不動前駅から徒歩5分、会議室・個室ブース各2室とラウンジスペースを備えたセットアップオフィス

不動前駅から徒歩5分、会議室・個室ブース各2室とラウンジスペースを備えたセットアップオフィス

募集中
エリア:品川・目黒区
広さ:60〜80坪
席数:20〜39席
公開日:2025.12.23

物件のご紹介

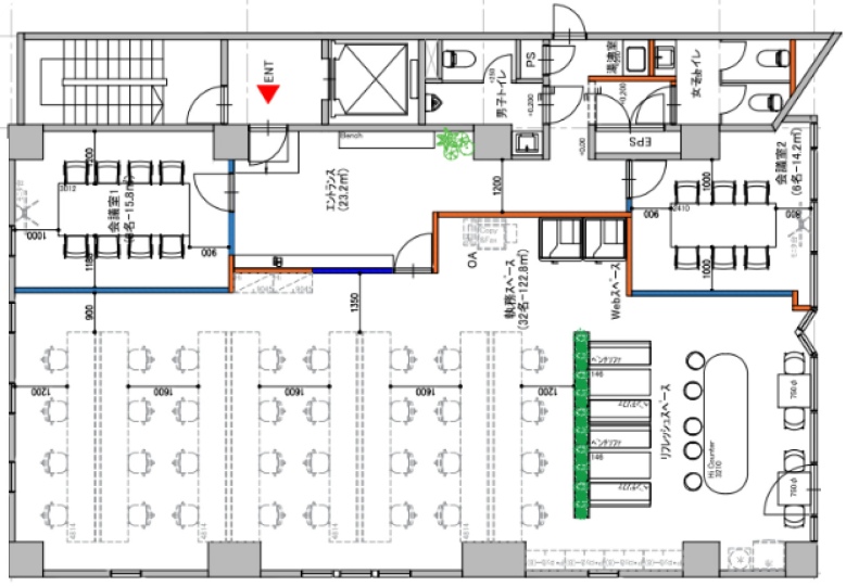
不動前駅近く、スタートアップからも注目が高まるセットアップオフィスをご紹介します。

本物件は東急目黒線「不動前駅」から徒歩5分、JR「五反田駅」も徒歩圏内に位置する、32名程度でのご利用を想定した内装付きオフィスです。

木目でアクセントをつけた受付スペースは、温かみのある色合いを基調とし、来客の方に好印象を与える上質な空間。会議室は8名用と6名用の計2室を完備し、テレカンブースも2室設置されているため、入居後の内装工事が不要で、スムーズに業務を開始することができます。

窓面側には開放的なラウンジスペースも設けられており、ランチ休憩や社内の軽い打ち合わせなど、多目的にご活用いただけるのも大きなポイントです。

詳細資料をご希望の場合は、ぜひお気軽にお問い合わせください。

おすすめポイント

  1. 木目を基調とした、温かみのあるデザインが魅力のセットアップオフィス
  2. 不動前駅徒歩5分、五反田駅も利用可能な2路線アクセス
  3. 会議室2室・テレカンブース2基に加え、ラウンジスペースまで備えた充実の設備
菅野 勇人

営業担当者

菅野 勇人

宅地建物取引士

セットアップオフィスから一般的なオフィスまで、多種多様なオフィスビルの魅力や特徴を熟知したオフィス物件マニア。

スタートアップ企業の移転支援経験が多く、そこで得た知見を活かし、お客様の理想のオフィス探しを全力でサポートいたします。

この物件を問い合わせる
物件概要
物件番号 s-2409
物件名 リードシー西五反田ビル
所在地 東京都品川区西五反田3-12-14
最寄り駅 東急目黒線
不動前駅 徒歩5分

JR 五反田駅
徒歩12分
階数 4階
面積 62.77坪
推奨席数 32席
物件タイプ セットアップオフィス
会議室数 6名掛け会議室×1室
8名掛け会議室×1室
テレカンブース数 2室
竣工年 1993年6月
特徴・設備 # テレカンブース付き # 会議室付き # 男女別トイレ # 2路線利用可 # 最寄り駅から徒歩5分以内
募集条件
月額賃料@坪単価 1,569,250円(坪25,000円)
敷金 / 保証金 6ヶ月
償却
礼金
更新料 / 再契約料 新賃料の1ヶ月分
入居可能日 2026年1月予定
契約期間 2年
原状回復有無
保証契約

※表示価格は税抜き価格です。

この物件を問い合わせる

物件のお問い合わせフォーム

オフィス物件を探す

キーワード
カテゴリー

Get In Touch!!

希望条件が決まっていなくても、オフィス移転のプロが要件定義からご一緒させていただきます。まずはお気軽にご相談くださいませ。

お電話でのお問い合わせはこちら

03-6858-3030

平日
9:00~18:00