Powered by
ホーム 品川・目黒区の居抜き・セットアップオフィスを探す 【即入居可】五反田駅徒歩8分|会議室2室・家具付きラウンジ完備のセットアップオフィス

【即入居可】五反田駅徒歩8分|会議室2室・家具付きラウンジ完備のセットアップオフィス

募集中
当社貸主物件
仲介手数料無料
エリア:品川・目黒区
広さ:60〜80坪
席数:20〜39席
公開日:2026.02.24

物件のご紹介

スタートアップの集積する「五反田バレー」としても名高い五反田エリアで、理想のオフィスをお探しのスタートアップ・ベンチャー企業様におすすめの『五反田テックワン』のご紹介です。東急目黒線・不動前駅から徒歩7分、JR五反田駅からも徒歩8分と複数路線を利用できる立地です。

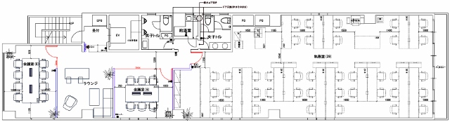
本物件は2021年にリニューアル工事済みのセットアップオフィスで、65.23坪(215.64㎡)の広々とした空間に30〜36席分の執務スペースを確保。会議室2室をあらかじめ完備しており、内装工事不要でスムーズな移転に対応します。エントランスには家具付きの専用ラウンジスペースも備えており、来客対応にも適した環境が整っています。

執務スペースには家具の設置がないため、レイアウトの自由度が高い点も魅力。即日入居可能で、急な移転ニーズにも柔軟に対応します。ご関心がございましたら、ぜひお早めにお問い合わせください。

おすすめポイント

  1. 当社貸主物件のため【仲介手数料不要】
  2. スタートアップ人気の高い五反田エリアのセットアップオフィス
  3. エントランスには専用ラウンジも備え、来客対応もスムーズ
菅野 勇人

営業担当者

菅野 勇人

宅地建物取引士

セットアップオフィスから一般的なオフィスまで、多種多様なオフィスビルの魅力や特徴を熟知したオフィス物件マニア。

スタートアップ企業の移転支援経験が多く、そこで得た知見を活かし、お客様の理想のオフィス探しを全力でサポートいたします。

この物件を問い合わせる
物件概要
物件番号 s-2469
物件名 五反田テックワン
所在地 東京都品川区西五反田7-1-10
最寄り駅 東急目黒線
不動前駅 徒歩7分

東急池上線
大崎広小路駅 徒歩7分

JR 五反田駅
徒歩8分

都営浅草線
五反田駅 徒歩8分

JR 大崎駅
徒歩14分
階数 8階
面積 65.23坪(215.64㎡)
推奨席数 30〜36席
物件タイプ セットアップオフィス
会議室数 6名掛け会議室×2室
8名掛け会議室×1室
竣工年 1988年12月
特徴・設備 # 会議室付き # 男女別トイレ # 2路線利用可
募集条件
月額賃料@坪単価 1,565,520円(坪24,000円)
敷金 / 保証金 9,393,120円(6ヶ月)
償却
礼金
更新料 / 再契約料
入居可能日 即日
契約期間 定期借家契約5年
原状回復有無
保証契約

※表示価格は税抜き価格です。

この物件を問い合わせる

物件のお問い合わせフォーム

オフィス物件を探す

キーワード
カテゴリー

Get In Touch!!

希望条件が決まっていなくても、オフィス移転のプロが要件定義からご一緒させていただきます。まずはお気軽にご相談くださいませ。

お電話でのお問い合わせはこちら

03-6858-3030

平日
9:00~18:00