Powered by
ホーム 品川・目黒区の居抜き・セットアップオフィスを探す 【敷金最大0】不動前駅徒歩3分!注目の西五反田エリア、内装リニューアル済みのセットアップオフィス

【敷金最大0】不動前駅徒歩3分!注目の西五反田エリア、内装リニューアル済みのセットアップオフィス

募集中
当社貸主物件
仲介手数料無料
エリア:品川・目黒区
広さ:〜30坪
席数:10〜19席
公開日:2026.04.17

物件のご紹介

東急目黒線「不動前駅」から徒歩3分。スタートアップの集積地としても注目される“西五反田エリア”で、新たな拠点をお探しのスタートアップ・ベンチャー企業様におすすめの『ヘリオスビル』をご紹介します。山手通り沿いのスタイリッシュな外観が特徴のオフィスビルで、木目調で開放的のあるエントランスが、来訪者に好印象を与えます。

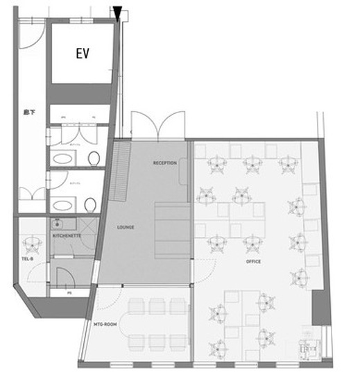
ご紹介の区画は23.86坪のセットアップオフィスで、最大14名程度でのご利用を想定しています。内装はシンプルながら温かみのあるデザインで統一され、執務スペースの内装に加え、専用のラウンジスペースと6名用の会議室を完備。内装工事が不要なことに加え、敷金も最大0か月と、初期費用を大幅に抑えられる点も大きな魅力です。

入居開始は2026年9月上旬を予定しております。人気の五反田エリアで希少なセットアップオフィスとなっておりますので、ご関心をお持ちの場合はぜひお早めにお問い合わせください。

おすすめポイント

  1. 当社貸主物件のため【仲介手数料不要】
  2. 内装工事不要、敷金最大0か月で初期費用を大幅削減
  3. JR五反田駅・目黒駅も徒歩圏内。スタートアップが集まる西五反田エリア
  4. 2024年11月にリニューアルされたばかりで内装の新しいセットアップオフィス
菅野 勇人

営業担当者

菅野 勇人

宅地建物取引士

セットアップオフィスから一般的なオフィスまで、多種多様なオフィスビルの魅力や特徴を熟知したオフィス物件マニア。

スタートアップ企業の移転支援経験が多く、そこで得た知見を活かし、お客様の理想のオフィス探しを全力でサポートいたします。

この物件を問い合わせる
物件概要
物件番号 s-2519
物件名 ヘリオスビル
所在地 東京都品川区西五反田5-1-3
最寄り駅 東急目黒線
不動前駅 徒歩3分

東急池上線
大崎広小路駅 徒歩10分

JR 五反田駅
徒歩11分

JR 目黒駅
徒歩12分

東京メトロ南北線
目黒駅 徒歩12分
階数 1階
面積 23.86坪(78.89㎡)
推奨席数 14席
物件タイプ フルセットアップオフィス
会議室数 6名掛け会議室×1室
テレカンブース数 1室
竣工年 1989年3月
特徴・設備 # 敷金無し # 会議室付き # 男女別トイレ # 2路線利用可 # 最寄り駅から徒歩5分以内 # 家具・什器付き # テレカンブース付き
募集条件
月額賃料@坪単価 596,500円(坪25,000円)
敷金 / 保証金 最大0ヶ月
償却
礼金
更新料 / 再契約料
入居可能日 2026年9月上旬予定
契約期間 2年
原状回復有無
保証契約

※表示価格は税抜き価格です。

この物件を問い合わせる

物件のお問い合わせフォーム

オフィス物件を探す

キーワード
カテゴリー

Get In Touch!!

希望条件が決まっていなくても、オフィス移転のプロが要件定義からご一緒させていただきます。まずはお気軽にご相談くださいませ。

お電話でのお問い合わせはこちら

03-6858-3030

平日
9:00~18:00