Powered by
ホーム 新宿区の居抜き・セットアップオフィスを探す 市ヶ谷駅徒歩3分!仲介手数料・原状回復不要のフルセットアップオフィス

市ヶ谷駅徒歩3分!仲介手数料・原状回復不要のフルセットアップオフィス

募集終了
当社貸主物件
仲介手数料無料
エリア:新宿区市谷本村町
広さ:30〜60坪
席数:10〜19席
公開日:2024.11.26

物件のご紹介

新宿区市ヶ谷に誕生した『NOVEL WORK Ichigaya』は、JR・東京メトロ「市ヶ谷駅」から徒歩6分、「四ツ谷駅」も徒歩圏内と、最大6路線が利用可能なアクセス抜群のフルセットアップオフィスです。

周辺には防衛省や大学キャンパスがあり、都心ながらも静かで働きやすく、ランチや会食利用に最適な飲食店も豊富にそろっています。

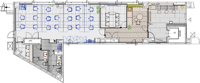
オフィス内部は15席の執務スペースと、会議室・テレカンブース各1室を完備。温かみのあるモダンなデザインの内装・家具、随所に配置されたインテリアや観葉植物が特徴の、シンプルながらも洗練された空間です。執務室には什器が備え付けのため、入居後すぐに業務を開始できる点も、スピード感を重視するスタートアップ企業様にとって嬉しいポイントです。

仲介手数料と原状回復費用は不要で、初期費用を抑えてご入居いただけます。屋上看板の設置や駐車場(いずれも有料)などのオプションもご用意しております。内覧のご相談など、お気軽にお問い合わせください。

おすすめのポイント

  1. 当社貸主物件のため仲介手数料不要
  2. 原状回復不要、什器完備で入退去時費用を抑えられるセットアップオフィス
  3. 駅近物件ながら喧騒から離れた落ち着いた環境
  4. 会議室・個室ブース完備で会議もスムーズに行える
  5. モダンで洗練された雰囲気の内装

菅野 勇人

営業担当者

菅野 勇人

宅地建物取引士

 

セットアップオフィスから一般的なオフィスまで、多種多様なオフィスビルの魅力や特徴を熟知したオフィス物件マニア。

スタートアップ企業の移転支援経験が多く、そこで得た知見を活かし、お客様の理想のオフィス探しを全力でサポートいたします。

この物件を問い合わせる
物件概要
物件番号 fs-3016
物件名 NOVEL WORK Ichigaya
所在地 東京都新宿区市谷本村町2-3
最寄り駅 JR 市ヶ谷駅
徒歩6分

東京メトロ有楽町線
市ヶ谷駅 徒歩3分

東京メトロ丸ノ内線
四ツ谷駅 徒歩8分
階数 1F
面積 34.93坪 (115.50m²)
推奨席数 15席
物件タイプ フルセットアップオフィス
会議室数 6名掛け会議室×1
テレカンブース数 1室
竣工年 1995年2月
特徴・設備 # 敷金3ヶ月以下 # 原状回復免除 # 家具・什器付き # テレカンブース付き # 会議室付き # 男女別トイレ # リノベーション済み # 最寄り駅から徒歩5分以内 # 2路線利用可
募集条件
月額賃料@坪単価 978,040円(@28,000円)
敷金 / 保証金 税込賃料の1ヶ月分
償却 賃料の1ヶ月分
礼金
更新料 / 再契約料
入居可能日 即日
契約期間 2年
原状回復有無
保証契約

※表示価格は税抜き価格です。

この物件を問い合わせる

物件のお問い合わせフォーム

オフィス物件を探す

キーワード
カテゴリー

Get In Touch!!

希望条件が決まっていなくても、オフィス移転のプロが要件定義からご一緒させていただきます。まずはお気軽にご相談くださいませ。

お電話でのお問い合わせはこちら

03-6858-3030

平日
9:00~18:00