Powered by
ホーム 新宿区の居抜き・セットアップオフィスを探す 新宿駅徒歩圏内!ビル内共有ラウンジも利用可能な家具付きフルセットアップオフィス

新宿駅徒歩圏内!ビル内共有ラウンジも利用可能な家具付きフルセットアップオフィス

募集中
エリア:新宿区西新宿
広さ:30〜60坪
席数:20〜39席
公開日:2025.11.14

物件のご紹介

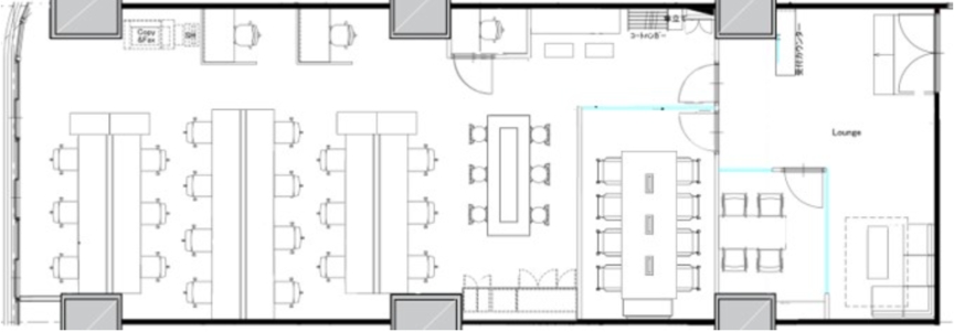
スタートアップ・ベンチャー企業様から人気の高い家具付きフルセットアップオフィス、『フロンティア新宿タワー』のご紹介です。京王新線「初台駅」から徒歩5分、JR「新宿駅」も徒歩圏内で、ビル周辺には3つのバス停があり、「渋谷駅」や「東京駅」へもダイレクトにアクセス可能です。 ビル内には飲食店も豊富で、日々のランチ利用にも大変便利な環境が整っています。

ご紹介の区画は44.33坪の20席想定のオフィスで、天井高最大3,400mmのスケルトン天井が開放的な空間を創り出しています。家具や什器はもちろん、8名用と6名用の会議室が計2室、オンライン会議に便利なテレカンブースも1基完備。加えて2階の共用ラウンジも無料で利用できるなど、充実したオフィス設備が魅力です。

保証会社を利用すれば敷金0ヶ月での契約も可能で、移転コストを大幅に抑えられる点も大きなメリットとなっています。資料請求については、ぜひお気軽にお問合せください。

おすすめポイント

  1. 新宿駅が徒歩圏内、バス利用で渋谷駅や東京駅へもダイレクトアクセス可能
  2. 保証会社の利用で【敷金0ヶ月】、イニシャルコストを大幅に削減
  3. 会議室・テレカンブースに加え、共用ラウンジも利用可能
菅野 勇人

営業担当者

菅野 勇人

宅地建物取引士

セットアップオフィスから一般的なオフィスまで、多種多様なオフィスビルの魅力や特徴を熟知したオフィス物件マニア。

スタートアップ企業の移転支援経験が多く、そこで得た知見を活かし、お客様の理想のオフィス探しを全力でサポートいたします。

この物件を問い合わせる
物件概要
物件番号 fs-3263
物件名 フロンティア新宿タワー
所在地 東京都新宿区西新宿3-9-7
最寄り駅 京王新線
初台駅 徒歩5分

都営大江戸線
都庁前駅 徒歩11分

JR 新宿駅 徒歩13分
階数 405号室
面積 44.33坪 (約146.54㎡)
推奨席数 22席
物件タイプ フルセットアップオフィス
会議室数 6名掛け会議室×1室
8名掛け会議室×1室
テレカンブース数 1室
竣工年 2018年1月
特徴・設備 # 敷金無し # 家具・什器付き # テレカンブース付き # 会議室付き # 共有ラウンジ有り # スケルトン天井 # 男女別トイレ # 駐車場有り # 2路線利用可 # 最寄り駅から徒歩5分以内
募集条件
月額賃料@坪単価 相談
敷金 / 保証金 0ヶ月(保証会社利用時)
償却
礼金
更新料 / 再契約料
入居可能日 2026年2月以降
契約期間 2年
原状回復有無
保証契約

※表示価格は税抜き価格です。

この物件を問い合わせる

物件のお問い合わせフォーム

オフィス物件を探す

キーワード
カテゴリー

Get In Touch!!

希望条件が決まっていなくても、オフィス移転のプロが要件定義からご一緒させていただきます。まずはお気軽にご相談くださいませ。

お電話でのお問い合わせはこちら

03-6858-3030

平日
9:00~18:00