Powered by
ホーム 新宿区の居抜き・セットアップオフィスを探す 【仲介手数料0】新宿御苑前駅4分!25年9月リニューアルのフルセットアップオフィス

【仲介手数料0】新宿御苑前駅4分!25年9月リニューアルのフルセットアップオフィス

募集終了
当社貸主物件
仲介手数料無料
エリア:新宿区新宿
広さ:30〜60坪
席数:10〜19席
公開日:2025.09.01

物件のご紹介

新宿御苑前駅近く、スタートアップに人気の高い家具・内装付きフルセットアップオフィス『THE PORTAL 新宿御苑』をご紹介します。

本物件は、東京メトロ丸ノ内線「新宿御苑前駅」から徒歩わずか4分という立地が魅力。新宿三丁目駅や四谷三丁目駅も徒歩圏内で、複数路線が利用できるため、都内各所への移動がスムーズです。

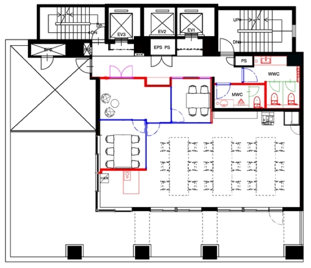
2025年9月に内装リニューアルが完了したの39.41坪の室内は、ベージュ系の内装を基調とし、落ち着きのある空間を演出。内装・家具付きのため、内装工事や家具の手配が不要で、スピーディーな移転をサポートします。

貸室内には6名用と4名用の会議室計2室、集中作業に便利なテレカンブース1室も完備しており、多様な働き方に対応可能です。2023年にリニューアルされた重厚感のあるエントランスや、「新宿御苑」の豊かな緑を身近に感じられる落ち着いた周辺環境も、おすすめのポイントとなっています。

人気の高い「新宿御苑エリア」のフルセットアップ仕様物件です。ご関心がございましたら、ぜひお早めにお問い合わせください。

おすすめポイント

  1. 当社貸主物件のため【仲介手数料不要】
  2. 新宿御苑前駅徒歩4分、「新宿御苑」も近い落ち着いた周辺環境
  3. 会議室・テレカンブースを完備、家具付きで即入居できるフルセットアップオフィス
  4. 2025年9月に内装リニューアル完了(予定)の新しい室内設備
菅野 勇人

営業担当者

菅野 勇人

宅地建物取引士

セットアップオフィスから一般的なオフィスまで、多種多様なオフィスビルの魅力や特徴を熟知したオフィス物件マニア。

スタートアップ企業の移転支援経験が多く、そこで得た知見を活かし、お客様の理想のオフィス探しを全力でサポートいたします。

この物件を問い合わせる
物件概要
物件番号 fs-3274
物件名 THE PORTAL 新宿御苑
所在地 東京都新宿区新宿1-23-1
最寄り駅 東京メトロ丸ノ内線
新宿御苑前駅 徒歩4分

東京メトロ丸ノ内線
四谷三丁目駅 徒歩8分

都営新宿線
新宿三丁目駅 徒歩10分

東京メトロ丸ノ内線
新宿三丁目駅 徒歩10分

都営新宿線
曙橋駅 徒歩11分
階数 10階
面積 39.41坪(130.30㎡)
推奨席数 18席
物件タイプ フルセットアップオフィス
会議室数 4名掛け会議室×1室
6名掛け会議室×1室
テレカンブース数 1室
竣工年 1995年1月
特徴・設備 # 家具・什器付き # テレカンブース付き # 会議室付き # 男女別トイレ # 駐車場有り # 2路線利用可 # 最寄り駅から徒歩5分以内
募集条件
月額賃料@坪単価 1,182,300円(@30,000円)
敷金 / 保証金 7,093,800円(6ヶ月)
償却
礼金
更新料 / 再契約料
入居可能日 即日
契約期間 2年
原状回復有無
保証契約

※表示価格は税抜き価格です。

この物件を問い合わせる

物件のお問い合わせフォーム

オフィス物件を探す

キーワード
カテゴリー

Get In Touch!!

希望条件が決まっていなくても、オフィス移転のプロが要件定義からご一緒させていただきます。まずはお気軽にご相談くださいませ。

お電話でのお問い合わせはこちら

03-6858-3030

平日
9:00~18:00