Powered by
ホーム 新宿区の居抜き・セットアップオフィスを探す 【移転コスト削減】西新宿エリア、デザイン性の高いWi-Fi付フルセットアップオフィス

【移転コスト削減】西新宿エリア、デザイン性の高いWi-Fi付フルセットアップオフィス

募集終了
当社貸主物件
仲介手数料無料
エリア:新宿区西新宿
広さ:〜30坪
席数:10〜19席
公開日:2024.11.26

物件のご紹介

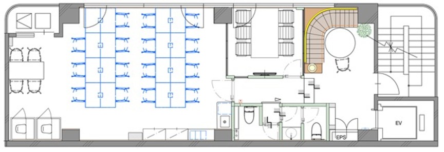
高層ビルが立ち並ぶビジネスエリア「西新宿」に、内装・家具付きのフルセットアップオフィス『NOVEL WORK Shinjuku West』が登場します。広さは25.01坪、15席での利用を想定した、スタートアップから成長企業まで、幅広いニーズに対応可能な空間です。

2025年11月の内装セットアップ工事により、室内は木目調の内装とブラックフレームが調和した、上質で落ち着いた空間に生まれ変わりました。インスピレーションを刺激する随所に設置されたアートも、この物件ならではの魅力です。

執務スペースのほか、6名用会議室1室とテレカンブース2室に加え、休憩やカジュアルな打ち合わせに最適な、ソファ付きの高級感あるラウンジスペースも完備。機能性とデザイン性を両立した快適なオフィス環境が、ビジネスの成長を力強くサポートします。

京王新線「初台」駅と都営大江戸線「都庁前」駅からそれぞれ徒歩7分の距離で、物件近くのバス停からは15分間隔でバスが運行しており、新宿駅へもスムーズにアクセスできます。

資料のご請求など、ぜひお気軽にお問い合わせください。

おすすめポイント

  1. 当社貸主物件のため【仲介手数料不要】
  2. 敷金0・原状回復不要で、移転コストを大幅に削減
  3. 会議室にテレカンブース、専用ラウンジまで備えたフルセットアップオフィス
  4. Wi-Fi完備で即日業務をスタートできる
  5. 最寄りのバス停から「新宿」駅への循環バスも利用可能

同ビル別フロア物件

菅野 勇人

営業担当者

菅野 勇人

宅地建物取引士

セットアップオフィスから一般的なオフィスまで、多種多様なオフィスビルの魅力や特徴を熟知したオフィス物件マニア。

スタートアップ企業の移転支援経験が多く、そこで得た知見を活かし、お客様の理想のオフィス探しを全力でサポートいたします。

この物件を問い合わせる
物件概要
物件番号 fs-3278
物件名 NOVEL WORK Shinjuku West
所在地 東京都新宿区西新宿3-9-6
最寄り駅 京王新線
初台駅 徒歩7分

都営大江戸線
都庁前駅 徒歩7分

都営大江戸線
新宿駅 徒歩10分

JR 新宿駅
徒歩13分
階数 7階
面積 25.01坪(82.68㎡)
推奨席数 15席
物件タイプ フルセットアップオフィス
会議室数 6名掛け会議室×1室
テレカンブース数 2室
竣工年 1990年11月
特徴・設備 # 敷金無し # 原状回復免除 # 家具・什器付き # テレカンブース付き # 会議室付き # Wi-Fi完備 # 男女別トイレ # 2路線利用可
募集条件
月額賃料@坪単価 750,300円(坪30,000円)
敷金 / 保証金 最大0ヶ月
償却
礼金
更新料 / 再契約料
入居可能日 2025年12月~1月頃
契約期間 2年(1年未満での解約不可)
原状回復有無
保証契約

※表示価格は税抜き価格です。

この物件を問い合わせる

物件のお問い合わせフォーム

オフィス物件を探す

キーワード
カテゴリー

Get In Touch!!

希望条件が決まっていなくても、オフィス移転のプロが要件定義からご一緒させていただきます。まずはお気軽にご相談くださいませ。

お電話でのお問い合わせはこちら

03-6858-3030

平日
9:00~18:00