Powered by
ホーム 新宿区の居抜き・セットアップオフィスを探す 【敷金0・原状回復不要】四谷三丁目駅徒歩2分!モダンな内装が魅力の小規模フルセットアップオフィス

【敷金0・原状回復不要】四谷三丁目駅徒歩2分!モダンな内装が魅力の小規模フルセットアップオフィス

募集中
当社貸主物件
仲介手数料無料
エリア:新宿区四谷
広さ:〜30坪
席数:10〜19席
公開日:2025.12.17

物件のご紹介

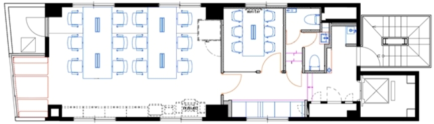
東京メトロ丸ノ内線「四谷三丁目駅」より徒歩わずか2分、白と木目を基調としたモダンデザインのフルセットアップオフィス『Biz Feel 四谷三丁目』のご紹介です。

特徴的なタイル装飾が彩る受付を抜けると、軽い打ち合わせに便利な少人数向けのミーティングスペースや開放的なガラス張りの会議室など、洗練されたワークスペースが広がります。最大12名で利用可能な執務室内には、Web会議に最適な個室ブースや、ゆったりとしたソファタイプのボックス席も完備し、機能性の面でも申し分ありません。

敷金最大0ヶ月・原状回復不要というコストメリットの高さも、資金繰りを重視されるスタートアップにとって大きな魅力。人気が予想されますので、ご関心がございましたら、ぜひお早めにお問い合わせください。

※掲載写真は他フロアを撮影した参考写真です。

おすすめポイント

  1. 当社貸主物件のため【仲介手数料不要】
  2. 敷金最大0ヶ月・原状回復義務なしで、移転コストを大幅に削減
  3. コンパクトながら多様なワークスペースを完備したフルセットアップオフィス
菅野 勇人

営業担当者

菅野 勇人

宅地建物取引士

セットアップオフィスから一般的なオフィスまで、多種多様なオフィスビルの魅力や特徴を熟知したオフィス物件マニア。

スタートアップ企業の移転支援経験が多く、そこで得た知見を活かし、お客様の理想のオフィス探しを全力でサポートいたします。

この物件を問い合わせる
物件概要
物件番号 fs-3401
物件名 Biz Feel 四谷三丁目
所在地 東京都新宿区四谷3-13-11
最寄り駅 東京メトロ丸ノ内線
四谷三丁目駅 徒歩2分

都営新宿線
曙橋駅 徒歩9分

東京メトロ丸ノ内線
新宿御苑前駅 徒歩9分
階数 2階
面積 20.18坪(66.71㎡)
推奨席数 12席
物件タイプ フルセットアップオフィス
会議室数 6名掛け会議室×1室
テレカンブース数 1室
竣工年 1994年3月
特徴・設備 # 敷金無し # 原状回復免除 # 家具・什器付き # テレカンブース付き # 会議室付き # Wi-Fi完備 # キッチン有り # 男女別トイレ # 2路線利用可 # 最寄り駅から徒歩5分以内
募集条件
月額賃料@坪単価 605,400円(坪30,000円)
敷金 / 保証金 最大0ヶ月
償却
礼金
更新料 / 再契約料
入居可能日 2026年4月予定
契約期間 2年(12ヶ月間解約不可)
原状回復有無
保証契約

※表示価格は税抜き価格です。

この物件を問い合わせる

物件のお問い合わせフォーム

オフィス物件を探す

キーワード
カテゴリー

Get In Touch!!

希望条件が決まっていなくても、オフィス移転のプロが要件定義からご一緒させていただきます。まずはお気軽にご相談くださいませ。

お電話でのお問い合わせはこちら

03-6858-3030

平日
9:00~18:00