Powered by
ホーム 新宿区の居抜き・セットアップオフィスを探す 【敷金0・原状回復不要】新宿駅徒歩圏内!Wi-Fi完備のモダンなフルセットアップオフィス

【敷金0・原状回復不要】新宿駅徒歩圏内!Wi-Fi完備のモダンなフルセットアップオフィス

募集終了
当社貸主物件
仲介手数料無料
エリア:新宿区西新宿
広さ:〜30坪
席数:10〜19席
公開日:2025.10.01

物件のご紹介

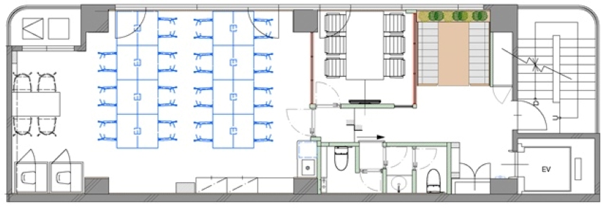
ビジネス街としてスタートアップからの人気も高い西新宿エリアで、洗練されたデザインと機能性を兼ね備えたフルセットアップオフィス『NOVEL WORK Shinjuku West』をご紹介します。本物件は、京王新線「初台駅」より徒歩7分、都営大江戸線「都庁前駅」からは徒歩9分の距離に位置し、JR「新宿駅」も徒歩圏内で利用可能です。

室内は25.01坪の広さを確保し、15名様のご利用を想定したレイアウトとなっています。内装は木目調の床や天井が温かみとモダンな雰囲気を演出し、床材の貼り分けによって通路と執務エリアが自然にゾーニングされている点が特徴です。

空間を引き締める黒のデスクやメッシュチェア、ロッカーに加え、壁面のアートや暖色の収納家具が上質なデザイン性をプラスしています。会議室1室とテレカンブース2室、Wi-Fi環境も完備されており、いずれも家具が設置された状態のため、入居後すぐ業務をスタートできる点も大きな魅力です。

さらに、敷金は最大0ヶ月、退去時の原状回復義務もないため、移転にかかる初期費用や退去時のコストを大幅に削減できます。ご関心がございましたら、ぜひお早めにお問い合わせください。

※掲載写真は他フロアを撮影した参考写真です。

おすすめポイント

  1. 当社貸主物件のため【仲介手数料不要】
  2. 敷金最大0ヶ月かつ原状回復義務なしで、移転コストを大幅削減
  3. 木目調の内装やゾーニング、こだわりの家具が調和したモダンな空間デザイン
  4. 会議室・テレカンブースに加え、Wi-Fiまで完備のフルセットアップオフィス
  5. 初台・都庁前・新宿の3駅利用可、複数路線アクセスによる高い利便性
菅野 勇人

営業担当者

菅野 勇人

宅地建物取引士

セットアップオフィスから一般的なオフィスまで、多種多様なオフィスビルの魅力や特徴を熟知したオフィス物件マニア。

スタートアップ企業の移転支援経験が多く、そこで得た知見を活かし、お客様の理想のオフィス探しを全力でサポートいたします。

この物件を問い合わせる
物件概要
物件番号 fs-3415
物件名 NOVEL WORK Shinjuku West
所在地 東京都新宿区西新宿3-9-6
最寄り駅 京王新線
初台駅 徒歩7分

都営大江戸線
都庁前駅 徒歩9分

JR 新宿駅
徒歩13分
階数 6階
面積 25.01坪(82.687㎡)
推奨席数 15席
物件タイプ フルセットアップオフィス
会議室数 6名掛け会議室×1室
テレカンブース数 2室
竣工年 1990年11月
特徴・設備 # 敷金無し # 原状回復免除 # 家具・什器付き # テレカンブース付き # 会議室付き # Wi-Fi完備 # 2路線利用可 # 男女別トイレ
募集条件
月額賃料@坪単価 775,310円(坪31,000円)
敷金 / 保証金 最大0ヶ月
償却
礼金
更新料 / 再契約料
入居可能日 2026年4月上旬予定
契約期間 2年(12ヶ月間解約不可)
原状回復有無
保証契約

※表示価格は税抜き価格です。

この物件を問い合わせる

物件のお問い合わせフォーム

オフィス物件を探す

キーワード
カテゴリー

Get In Touch!!

希望条件が決まっていなくても、オフィス移転のプロが要件定義からご一緒させていただきます。まずはお気軽にご相談くださいませ。

お電話でのお問い合わせはこちら

03-6858-3030

平日
9:00~18:00