Powered by
ホーム 新宿区の居抜き・セットアップオフィスを探す 市ヶ谷駅徒歩4分!外濠の水辺を望む受付・会議室付きセットアップオフィス

市ヶ谷駅徒歩4分!外濠の水辺を望む受付・会議室付きセットアップオフィス

募集終了
当社管理物件
エリア:新宿区市谷田町
広さ:〜30坪
席数:10席未満
公開日:2024.11.26

物件のご紹介

市ヶ谷駅から徒歩4分の好立地に位置する「THE GATE ICHIGAYA 8階」は、外堀通りに面し、外濠の水辺を一望できる景観も魅力のセットアップオフィスです。

周辺にはオフィスビルだけでなく、教育機関や政府機関、歴史的建造物や寺院も多く、落ち着いたビジネス環境が整っています。JR・東京メトロ複数路線が利用でき、アクセスの良さも魅力のひとつ。

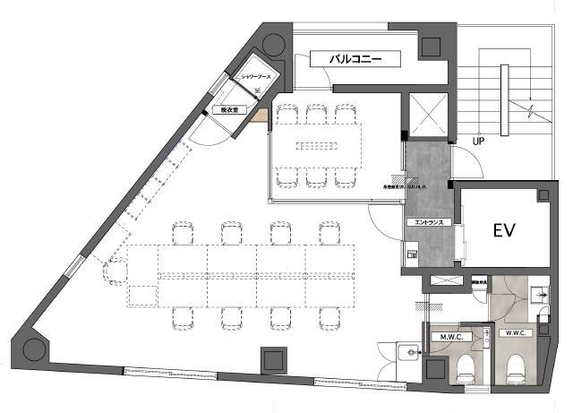
本物件は2017年12月に外観・エントランス・貸室内を大幅リニューアルしており、清潔感のあるデザインに生まれ変わりました。貸室内には受付スペースと6名用会議室が備わり、内装の整備されたセットアップオフィスのため、スピード感を求めるスタートアップ企業様でも、スムーズな移転が実現可能です。

2025年8月1日より入居可能となっておりますので、近々移転をご検討されているスタートアップ企業様はぜひお早めにお問い合わせください。

おすすめポイント

  1. 市ヶ谷駅徒歩4分の好立地でアクセス抜群
  2. 2017年に大幅リニューアル済みで清潔感のあるエントランス
  3. 6名用会議室付きのセットアップオフィスでスムーズな移転を実現
  4. 外濠の水辺を一望できる開放的なオフィス空間
菅野 勇人

営業担当者

菅野 勇人

宅地建物取引士

セットアップオフィスから一般的なオフィスまで、多種多様なオフィスビルの魅力や特徴を熟知したオフィス物件マニア。

スタートアップ企業の移転支援経験が多く、そこで得た知見を活かし、お客様の理想のオフィス探しを全力でサポートいたします。

この物件を問い合わせる
物件概要
物件番号 s-2147
物件名 THE GATE ICHIGAYA 8階
所在地 東京都新宿区市谷田町3-6
最寄り駅 東京メトロ有楽町線・南北線
市ヶ谷駅 徒歩4分

JR 市ヶ谷・飯田橋駅 徒歩9分

都営大江戸線
飯田橋駅 徒歩9分
階数 8階
面積 17.73坪 (58.63㎡)
推奨席数 8席
物件タイプ セットアップオフィス
会議室数 6名掛け会議室×1
テレカンブース数
竣工年 1986年1月
特徴・設備 # 会議室付き # 男女別トイレ # リノベーション済み # 2路線利用可 # 最寄り駅から徒歩5分以内
募集条件
月額賃料@坪単価 372,330円(@21,000円)
敷金 / 保証金 1,489,320円(4ヶ月分)
償却
礼金
更新料 / 再契約料 新賃料の1ヶ月分
入居可能日 2025年8月1日予定
契約期間 2年
原状回復有無
保証契約

※表示価格は税抜き価格です。

この物件を問い合わせる

物件のお問い合わせフォーム

オフィス物件を探す

キーワード
カテゴリー

Get In Touch!!

希望条件が決まっていなくても、オフィス移転のプロが要件定義からご一緒させていただきます。まずはお気軽にご相談くださいませ。

お電話でのお問い合わせはこちら

03-6858-3030

平日
9:00~18:00