Powered by
ホーム 新宿区の居抜き・セットアップオフィスを探す 新宿三丁目駅徒歩2分!ゆとりあるスペースが魅力のセットアップオフィス

新宿三丁目駅徒歩2分!ゆとりあるスペースが魅力のセットアップオフィス

募集終了
エリア:新宿区新宿
広さ:60〜80坪
席数:40〜59席
公開日:2024.11.26

物件のご紹介

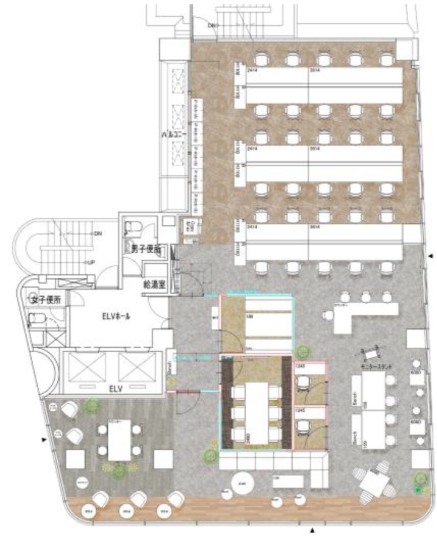
「新宿三丁目駅」徒歩2分の好立地に、モダンなデザインと多様なワークスペースが魅力の、内装付きセットアップオフィスが登場します。

64.86坪の広々とした空間には、40席の執務室に加え、4名用・6名用の会議室各1室とテレカンブース2室を完備。成長フェーズの企業様にも十分対応できる、ゆとりある設計となっています。

基本的なワークスペースのほか、採光性の高いリフレッシュスペースや、ゆったりとしたオープンスペースも備えており、従業員様の快適な労働環境、社内コミュニケーションの活性化もサポートする、機能的なレイアウトが特徴です。

新宿の中心エリアでありながらコストパフォーマンスに優れた本物件は、スタートアップ・ベンチャーフェーズの企業様の更なる成長をサポートする、理想的なビジネス拠点となっております。

25年6月の入居開始に向けてお問い合わせが増えることが予想されますので、ご興味をお持ちの企業様は、ぜひお早めにお問い合わせください。

おすすめポイント

  1. 新宿の中心エリア「新宿三丁目駅」徒歩2分の好立地
  2. 40席対応の執務室を備え、成長フェーズの企業様にも最適
  3. 多様なワークスペースを完備した、人気のセットアップオフィス

菅野 勇人

営業担当者

菅野 勇人

宅地建物取引士

セットアップオフィスから一般的なオフィスまで、多種多様なオフィスビルの魅力や特徴を熟知したオフィス物件マニア。

スタートアップ企業の移転支援経験が多く、そこで得た知見を活かし、お客様の理想のオフィス探しを全力でサポートいたします。

この物件を問い合わせる
物件概要
物件番号 s-2196
所在地 東京都新宿区新宿2-6-4
最寄り駅 都営新宿線
新宿三丁目駅 徒歩2分

東京メトロ 丸ノ内線
新宿三丁目駅 徒歩2分
階数 8階
面積 64.86坪
推奨席数 40席
物件タイプ セットアップオフィス
会議室数 4名掛け会議室×1室
6名掛け会議室×1室
テレカンブース数 2室
竣工年 1985年7月
特徴・設備 # テレカンブース付き # 会議室付き # 男女別トイレ # 2路線利用可 # 最寄り駅から徒歩5分以内
募集条件
月額賃料@坪単価 相談
敷金 / 保証金 6ヶ月
償却
礼金
更新料 / 再契約料
入居可能日 2025年6月
契約期間 3年
原状回復有無
保証契約

※表示価格は税抜き価格です。

この物件を問い合わせる

物件のお問い合わせフォーム

オフィス物件を探す

キーワード
カテゴリー

Get In Touch!!

希望条件が決まっていなくても、オフィス移転のプロが要件定義からご一緒させていただきます。まずはお気軽にご相談くださいませ。

お電話でのお問い合わせはこちら

03-6858-3030

平日
9:00~18:00