Powered by
ホーム 新宿区の居抜き・セットアップオフィスを探す 四谷三丁目徒歩2分!敷金1ヶ月のみ/原状回復不要のセットアップオフィス

四谷三丁目徒歩2分!敷金1ヶ月のみ/原状回復不要のセットアップオフィス

募集中
エリア:新宿区四谷
広さ:30〜60坪
公開日:2026.01.05

物件のご紹介

四谷三丁目駅から徒歩わずか2分、新宿通り沿いに位置する視認性の高いビル『U square 四谷三丁目』の内装付きセットアップオフィスをご紹介します。

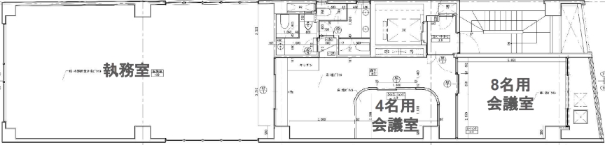
ご案内の3階フロアは45.77坪で、20〜30名規模のスタートアップやベンチャー企業様に最適な広さを確保。内装付き物件のため、通常2〜3ヶ月かかる内装工事期間を省略でき、スピード感を持って事業を展開したい企業様に最適です。8名用と4名用の会議室が2室完備されており、執務スペースと合わせて機能的なレイアウトが実現できます。

敷金1ヶ月のみ、さらに原状回復が不要という点で、移転時の初期コストと退去時の負担を大幅に削減できるのも大きなメリット。2026年7月入居予定ですが、前倒しのお引き渡しも相談可能です。ぜひお気軽にお問い合わせください。

※掲載写真は他フロアのものを使用しています。

おすすめポイント

  1. 敷金1ヶ月のみ・原状回復不要で、移転コストを大幅削減
  2. 20~30名規模のレイアウトで、成長フェーズの企業様に最適
  3. 会議室2室完備のセットアップオフィスで、スムーズな入居が可能
  4. 四谷三丁目駅徒歩2分、新宿通り沿いの視認性の高い好立地
菅野 勇人

営業担当者

菅野 勇人

宅地建物取引士

セットアップオフィスから一般的なオフィスまで、多種多様なオフィスビルの魅力や特徴を熟知したオフィス物件マニア。

スタートアップ企業の移転支援経験が多く、そこで得た知見を活かし、お客様の理想のオフィス探しを全力でサポートいたします。

この物件を問い合わせる
物件概要
物件番号 s-2331
物件名 U square 四谷三丁目
所在地 東京都新宿区四谷3-13-24
最寄り駅 東京メトロ丸の内線
四谷三丁目駅 徒歩2分

都営新宿線
曙橋駅 徒歩10分

東京メトロ丸の内線
新宿御苑前駅 徒歩10分

JR 四ツ谷駅
徒歩13分

東京メトロ南北線
四ツ谷駅 徒歩13分

東京メトロ丸の内線
四ツ谷駅 徒歩13分
階数 3階
面積 45.77坪 (151.34㎡)
推奨席数 20~30席
物件タイプ セットアップオフィス
会議室数 4名掛け会議室×1室
8名掛け会議室×1室
竣工年 1983年10月
特徴・設備 # 敷金3ヶ月以下 # 原状回復免除 # 会議室付き # リノベーション済み # 男女別トイレ # 2路線利用可 # 最寄り駅から徒歩5分以内
募集条件
月額賃料@坪単価 相談
敷金 / 保証金 税込賃料の1ヶ月分
償却 1ヶ月分
礼金
更新料 / 再契約料 新賃料の1ヶ月分
入居可能日 2026年7月
契約期間 2年
原状回復有無
保証契約

※表示価格は税抜き価格です。

この物件を問い合わせる

物件のお問い合わせフォーム

オフィス物件を探す

キーワード
カテゴリー

Get In Touch!!

希望条件が決まっていなくても、オフィス移転のプロが要件定義からご一緒させていただきます。まずはお気軽にご相談くださいませ。

お電話でのお問い合わせはこちら

03-6858-3030

平日
9:00~18:00