Powered by
ホーム 新宿区の居抜き・セットアップオフィスを探す 新宿三丁目駅徒歩4分!内装工事削減、ラウンジエリアまで備えたセットアップオフィス

新宿三丁目駅徒歩4分!内装工事削減、ラウンジエリアまで備えたセットアップオフィス

募集終了
当社管理物件
エリア:新宿区新宿
広さ:30〜60坪
席数:10〜19席
公開日:2025.09.01

物件のご紹介

成長フェーズのスタートアップ企業様に最適な、セットアップオフィス『The Corner SHINJUKU(4階)』のご紹介です。

本物件は、東京メトロ丸ノ内線・副都心線、都営新宿線「新宿三丁目駅」から徒歩わずか4分。JR新宿駅も徒歩圏内にあり、複数路線が利用できる、高い利便性を誇ります。

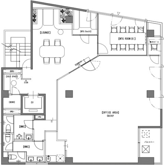
広さは45.76坪(151.30㎡)で、最大20席規模での利用を想定しており、執務スペースに加え、会議室2室とテレカンブース、さらにはラウンジエリアまで備えています。多様な働き方に対応できる、柔軟なレイアウトが魅力です。

資料のご請求や内覧については、ぜひお気軽にお問い合わせください。

おすすめポイント

  1. 内装工事削減で、スムーズな移転を実現するセットアップオフィス
  2. 会議室・テレカンブース・ラウンジを備えた、多様な働き方に対応するレイアウト
  3. 丸の内線の利用で、東京駅へのアクセスもしやすい立地
菅野 勇人

営業担当者

菅野 勇人

宅地建物取引士

セットアップオフィスから一般的なオフィスまで、多種多様なオフィスビルの魅力や特徴を熟知したオフィス物件マニア。

スタートアップ企業の移転支援経験が多く、そこで得た知見を活かし、お客様の理想のオフィス探しを全力でサポートいたします。

この物件を問い合わせる
物件概要
物件番号 s-2366
物件名 The Corner SHINJUKU
所在地 東京都新宿区新宿5-10-15
最寄り駅 東京メトロ丸ノ内線
新宿三丁目駅 徒歩4分

都営新宿線
新宿三丁目駅 徒歩4分

東京メトロ副都心線
新宿三丁目駅 徒歩4分

都営大江戸線
東新宿駅 徒歩8分

JR 新宿駅
徒歩12分
階数 4階
面積 45.76坪(151.30㎡)
推奨席数 16~20席
物件タイプ セットアップオフィス
会議室数 4名掛け会議室×1室
8名掛け会議室×1室
テレカンブース数 1室
竣工年 1984年6月
特徴・設備 # テレカンブース付き # 会議室付き # 男女別トイレ # 2路線利用可 # 最寄り駅から徒歩5分以内
募集条件
月額賃料@坪単価 1,144,000円(@25,000円)
敷金 / 保証金 6,864,000円(6ヶ月)
償却
礼金
更新料 / 再契約料
入居可能日 相談
契約期間 2年
原状回復有無
保証契約

※表示価格は税抜き価格です。

この物件を問い合わせる

物件のお問い合わせフォーム

オフィス物件を探す

キーワード
カテゴリー

Get In Touch!!

希望条件が決まっていなくても、オフィス移転のプロが要件定義からご一緒させていただきます。まずはお気軽にご相談くださいませ。

お電話でのお問い合わせはこちら

03-6858-3030

平日
9:00~18:00