Powered by
ホーム 新宿区の居抜き・セットアップオフィスを探す 市ヶ谷駅徒歩2分!5路線の利用が可能な、2026年6月完成の新装セットアップオフィス

市ヶ谷駅徒歩2分!5路線の利用が可能な、2026年6月完成の新装セットアップオフィス

募集中
当社管理物件
エリア:新宿区市谷田町
広さ:30〜60坪
席数:20〜39席
公開日:2026.03.10

物件のご紹介

新宿区市ヶ谷エリアで新たなオフィスをお探しのスタートアップ・ベンチャー企業様に、『市ヶ谷クロスプレイス』をご紹介します。東京メトロ南北線・市ヶ谷駅から徒歩2分、有楽町線やJR中央線など計5路線が利用可能な交通至便の立地で、大通りに面したレンガ造りの外観と風格あるエントランスが目を引きます。

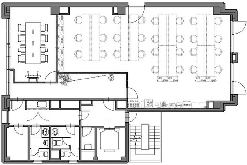
ご紹介の区画は約41坪のセットアップオフィスで、20〜28名規模でのご利用を想定しています。白と木目調の素材を基調とした清潔感のある内装に、8名掛けの会議室1室とテレカンブース1室を完備。内装工事が不要で、スムーズな移転をご希望の場合に最適です。

2026年6月に内装造作付きセットアップ工事が完了予定のため、新しく快適な環境で業務をスタートできます。メインオフィスとしてはもちろん、拠点展開としてもご活用いただける一室となっています。

ご関心がございましたら、ぜひお気軽にお問い合わせください。

おすすめポイント

  1. 市ヶ谷駅徒歩2分、計5路線が利用できる抜群のアクセス
  2. 会議室・テレカンブース完備の便利なセットアップオフィス
  3. 2026年6月セットアップ工事完了の新しい内装
菅野 勇人

営業担当者

菅野 勇人

宅地建物取引士

セットアップオフィスから一般的なオフィスまで、多種多様なオフィスビルの魅力や特徴を熟知したオフィス物件マニア。

スタートアップ企業の移転支援経験が多く、そこで得た知見を活かし、お客様の理想のオフィス探しを全力でサポートいたします。

この物件を問い合わせる
物件概要
物件番号 s-2488
物件名 市ヶ谷クロスプレイス
所在地 東京都新宿区市谷田町2-7-15
最寄り駅 東京メトロ南北線
市ヶ谷駅 徒歩2分

東京メトロ有楽町線
市ヶ谷駅 徒歩5分

JR 市ヶ谷駅
徒歩7分

都営新宿線
市ヶ谷駅 徒歩10分

都営大江戸線
牛込神楽坂駅 徒歩11分
階数 3階
面積 50.82坪(168.00㎡)
推奨席数 20~28席
物件タイプ セットアップオフィス
会議室数 8名掛け会議室×1室
テレカンブース数 1室
竣工年 1993年6月
特徴・設備 # テレカンブース付き # 会議室付き # 男女別トイレ # 2路線利用可 # 最寄り駅から徒歩5分以内
募集条件
月額賃料@坪単価 1,168,860円(坪23,000円)
敷金 / 保証金 7,013,160円(6ヶ月分)
償却
礼金
更新料 / 再契約料 新賃料の1ヶ月分
入居可能日 2026年7月1日予定
契約期間 2年
原状回復有無
保証契約

※表示価格は税抜き価格です。

この物件を問い合わせる

物件のお問い合わせフォーム

オフィス物件を探す

キーワード
カテゴリー

Get In Touch!!

希望条件が決まっていなくても、オフィス移転のプロが要件定義からご一緒させていただきます。まずはお気軽にご相談くださいませ。

お電話でのお問い合わせはこちら

03-6858-3030

平日
9:00~18:00