Powered by
ホーム 新宿区の居抜き・セットアップオフィスを探す 高田馬場駅徒歩4分!2026年6月内装工事完了予定の、専用バルコニー付き新装セットアップオフィス

高田馬場駅徒歩4分!2026年6月内装工事完了予定の、専用バルコニー付き新装セットアップオフィス

募集中
エリア:新宿区高田馬場
広さ:30〜60坪
席数:20〜39席
公開日:2026.04.30

物件のご紹介

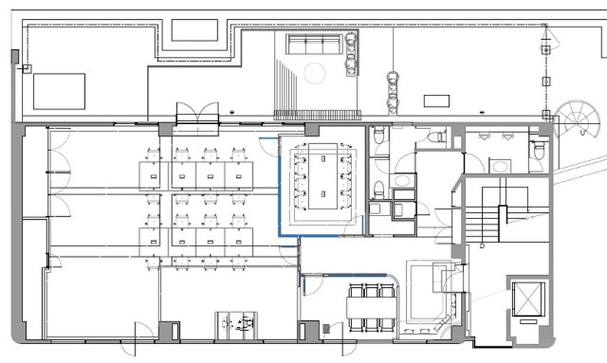
学生街として有名な「高田馬場」ならではの採用・立地メリットを活かしたいスタートアップ・ベンチャー企業様におすすめの、セットアップオフィス『高田馬場OCビル』のご紹介です。
JR・東京メトロ・西武新宿線の3路線が利用できる「高田馬場駅」から徒歩4分という立地で、新宿・池袋方面、大手町・日本橋方面など、都心各方面への移動もスムーズに行えます。

ご紹介の区画は約55坪の広さのセットアップオフィスで、最大28席程度でのご利用を想定しています。2026年6月に内装造作付きセットアップ工事が完了予定で、執務室の内装や会議室に加え、当区画専用のバルコニーも設置予定。内装工事不要で、快適に業務に取り組むことのできる環境が整います。

詳細や内覧のご相談については、ぜひお気軽にお問い合わせください。

おすすめポイント

  1. 内装完備でスムーズな移転をサポートするセットアップオフィス
  2. 本区画専用のバルコニーを設置予定
  3. 学生街の色合いが強いエリアで、採用活動にも貢献
菅野 勇人

営業担当者

菅野 勇人

宅地建物取引士

セットアップオフィスから一般的なオフィスまで、多種多様なオフィスビルの魅力や特徴を熟知したオフィス物件マニア。

スタートアップ企業の移転支援経験が多く、そこで得た知見を活かし、お客様の理想のオフィス探しを全力でサポートいたします。

この物件を問い合わせる
物件概要
物件番号 s-2533
物件名 高田馬場OCビル
所在地 東京都新宿区高田馬場3-12-2
最寄り駅 JR 高田馬場駅
徒歩4分

西武新宿線
高田馬場駅 徒歩4分

東京メトロ東西線
高田馬場駅 徒歩4分
階数 4階
面積 55.45坪(183.30㎡)
推奨席数 24~28席
物件タイプ セットアップオフィス
会議室数 会議室×2室
竣工年 1986年3月
特徴・設備 # 会議室付き # 男女別トイレ # 2路線利用可 # 最寄り駅から徒歩5分以内
募集条件
月額賃料@坪単価 1,608,050円(坪29,000円)
敷金 / 保証金 9,648,300円(6ヶ月)
償却
礼金
更新料 / 再契約料
入居可能日 相談
契約期間 2年
原状回復有無
保証契約

※表示価格は税抜き価格です。

この物件を問い合わせる

物件のお問い合わせフォーム

オフィス物件を探す

キーワード
カテゴリー

Get In Touch!!

希望条件が決まっていなくても、オフィス移転のプロが要件定義からご一緒させていただきます。まずはお気軽にご相談くださいませ。

お電話でのお問い合わせはこちら

03-6858-3030

平日
9:00~18:00