Powered by
ホーム 東京都内 その他の居抜き・セットアップオフィスを探す 【敷金0・原状回復不要】心斎橋駅徒歩3分!希少な大阪エリアの好立地フルセットアップオフィス

【敷金0・原状回復不要】心斎橋駅徒歩3分!希少な大阪エリアの好立地フルセットアップオフィス

募集中
当社管理物件
エリア:東京都内 その他
広さ:30〜60坪
席数:20〜39席
公開日:2026.03.20

物件のご紹介

大阪・心斎橋エリアでの拠点立ち上げをご検討中のスタートアップ・ベンチャー企業様に、長堀通り沿いの好立地物件をご紹介します。大阪メトロ御堂筋線「心斎橋駅」から徒歩3分、堺筋線「長堀橋駅」から徒歩4分と、複数路線を利用できるアクセス抜群のロケーションです。

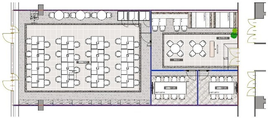
本物件は約55坪のフルセットアップオフィスで、32席の執務スペースを確保。水回りが専有面積に含まれていないため、レイアウト効率に非常に優れています。

会議室2室・テレカンブース3室を完備しており、少人数の打ち合わせから集中作業まで、シーンに応じた使い分けが可能です。内装はベージュ・グレー系でまとめた温かみのある配色で、カフェのような落ち着いた雰囲気のラウンジ空間も備えています。

コスト面でも優位性があり、敷金なし・原状回復義務なしのため、移転時の初期費用・退去費用を大幅に抑えることが可能です。

入居可能日は2026年6月上旬を予定しております。『Officci』では貴重な大阪エリアの掲載物件となります。ぜひお早めにお問い合わせください。

おすすめポイント

  1. 敷金なし・原状回復不要で、初期費用・退去費用を大幅に削減可能
  2. 大阪メトロ心斎橋駅徒歩3分、3路線利用可の好立地
  3. 会議室2室・テレカンブース3室を完備したフルセットアップオフィス
  4. カフェのような落ち着いたラウンジ空間と温かみのある内装デザイン
  5. 32席の執務スペース確保、レイアウト効率に優れた間取り
菅野 勇人

営業担当者

菅野 勇人

宅地建物取引士

セットアップオフィスから一般的なオフィスまで、多種多様なオフィスビルの魅力や特徴を熟知したオフィス物件マニア。

スタートアップ企業の移転支援経験が多く、そこで得た知見を活かし、お客様の理想のオフィス探しを全力でサポートいたします。

この物件を問い合わせる
物件概要
物件番号 fs-3505
所在地 大阪府大阪市中央区
最寄り駅 大阪メトロ御堂筋線
心斎橋駅 徒歩3分

大阪メトロ堺筋線
長堀橋駅 徒歩4分

大阪メトロ四つ橋線
四ツ橋駅 徒歩8分
階数 6階中区画
面積 約55坪
推奨席数 32席
物件タイプ フルセットアップオフィス
会議室数 6名掛け会議室×1室
8名掛け会議室×1室
テレカンブース数 3室
竣工年 1989年10月
特徴・設備 # 敷金無し # 原状回復免除 # 家具・什器付き # テレカンブース付き # 会議室付き # 男女別トイレ # 2路線利用可 # 最寄り駅から徒歩5分以内
募集条件
月額賃料@坪単価 1,682,400円(坪 30,000円)
敷金 / 保証金 最大0ヶ月
償却
礼金
更新料 / 再契約料
入居可能日 2026年6月上旬予定
契約期間 年数相談(定借)
原状回復有無
保証契約

※表示価格は税抜き価格です。

この物件を問い合わせる

物件のお問い合わせフォーム

オフィス物件を探す

キーワード
カテゴリー

Get In Touch!!

希望条件が決まっていなくても、オフィス移転のプロが要件定義からご一緒させていただきます。まずはお気軽にご相談くださいませ。

お電話でのお問い合わせはこちら

03-6858-3030

平日
9:00~18:00