Powered by
ホーム 千代田区の居抜き・セットアップオフィスを探す 秋葉原駅徒歩4分!移転コスト大幅削減が可能な新装フルセットアップオフィス

秋葉原駅徒歩4分!移転コスト大幅削減が可能な新装フルセットアップオフィス

募集終了
当社貸主物件
仲介手数料無料
エリア:千代田区神田佐久間町
広さ:30〜60坪
席数:10〜19席
公開日:2025.09.01

物件のご紹介

秋葉原エリアで、2025年10月にリニューアルが完了するフルセットアップオフィス『NOVEL WORK AKIHABARA』をご紹介します。JR山手線「秋葉原駅」からは徒歩わずか4分という優れた立地で、都内主要エリアへのアクセスも抜群です。

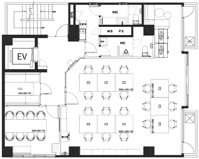
33.54坪(110.87㎡)の専有部は18席での利用を想定しており、スタートアップから成長フェーズのベンチャー企業まで、幅広いニーズに対応可能です。ブラウン基調の温かみのある会議室エリアと、グレーで統一されたモダンな執務スペースが調和した、用途に合わせて雰囲気の変わる内装デザインも魅力の一つ。会議室2室とテレカンブース2室を標準装備しており、機能面でも充実したつくりです。

ご関心がございましたら、ぜひお早めにお問い合わせください。

おすすめポイント

  1. 当社貸主物件のため【仲介手数料不要】
  2. 敷金・原状回復義務がなく、初期・退去時コストを大幅に削減
  3. 秋葉原駅徒歩4分、東京駅や新宿などへのアクセスも抜群
  4. 会議室2室・テレカンブース2室を完備した家具付きフルセットアップオフィス

同ビル別フロアの物件はこちら

菅野 勇人

営業担当者

菅野 勇人

宅地建物取引士

セットアップオフィスから一般的なオフィスまで、多種多様なオフィスビルの魅力や特徴を熟知したオフィス物件マニア。

スタートアップ企業の移転支援経験が多く、そこで得た知見を活かし、お客様の理想のオフィス探しを全力でサポートいたします。

この物件を問い合わせる
物件概要
物件番号 fs-3257
物件名 NOVEL WORK AKIHABARA
所在地 東京都千代田区神田佐久間町3-37-4
最寄り駅 JR 秋葉原駅
徒歩4分

東京メトロ日比谷線
秋葉原駅 徒歩4分

つくばエクスプレス
秋葉原駅 徒歩5分

都営新宿線
岩本町駅 徒歩6分

JR 浅草橋駅
徒歩7分
階数 3階
面積 33.54坪 (110.87㎡)
推奨席数 18席
物件タイプ フルセットアップオフィス
会議室数 6名掛け会議室×1室
(ソファ席)

8名掛け会議室×1室
テレカンブース数 2室
竣工年 1985年8月
特徴・設備 # 敷金無し # 原状回復免除 # 家具・什器付き # テレカンブース付き # 会議室付き # Wi-Fi完備 # 男女別トイレ # 2路線利用可 # 最寄り駅から徒歩5分以内
募集条件
月額賃料@坪単価 1,006,200円
敷金 / 保証金
償却
礼金
更新料 / 再契約料
入居可能日 2025年11月
契約期間 2年
原状回復有無
保証契約

※表示価格は税抜き価格です。

この物件を問い合わせる

物件のお問い合わせフォーム

オフィス物件を探す

キーワード
カテゴリー

Get In Touch!!

希望条件が決まっていなくても、オフィス移転のプロが要件定義からご一緒させていただきます。まずはお気軽にご相談くださいませ。

お電話でのお問い合わせはこちら

03-6858-3030

平日
9:00~18:00