Powered by
ホーム 千代田区の居抜き・セットアップオフィスを探す 【敷金0・原状回復不要】秋葉原エリア、内装の新しいWi-Fi付きフルセットアップオフィス

【敷金0・原状回復不要】秋葉原エリア、内装の新しいWi-Fi付きフルセットアップオフィス

募集終了
当社貸主物件
仲介手数料無料
エリア:千代田区神田佐久間町
広さ:〜30坪
公開日:2025.09.01

物件のご紹介

2025年11月にリニューアルが完了する『NOVEL WORK AKIHABARA』は、敷金最大0ヶ月で原状回復も不要。さらにデザイン性の高い内装・家具付きで、初期費用を大幅に抑えることができる、人気のフルセットアップオフィスです。東京駅や新宿駅へのアクセスにも便利な秋葉原エリアで、移転コストを抑えたいスタートアップや、ベンチャー企業の皆様に最適な物件となっています。

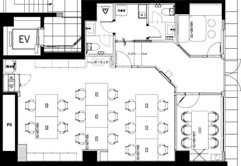
ご紹介の区画は1階の28.45坪(94.068㎡)、推奨16席のオフィス空間。[/](スラッシュ)をテーマにした洗練された内装デザインが特徴で、会議室2室とテレカンブース1室に加え、Wi-Fiまで完備しており、ご入居後すぐに業務を開始できるのも嬉しいポイントです。

JR秋葉原駅から徒歩わずか4分の立地で、東京メトロやつくばエクスプレスを含む複数路線が利用でき、交通利便性も申し分ありません。ご関心がございましたら、ぜひお早めにお問い合わせください。

おすすめポイント

  1. 当社貸主物件のため【仲介手数料不要】
  2. 敷金最大0ヶ月/原状回復不要で、移転コストを大幅に削減
  3. JR・メトロなど複数路線利用可、秋葉原駅徒歩4分の好アクセス
  4. 会議室などの内装に加え、Wi-Fiまで完備したフルセットアップオフィス

同ビル別フロアの物件はこちら

菅野 勇人

営業担当者

菅野 勇人

宅地建物取引士

セットアップオフィスから一般的なオフィスまで、多種多様なオフィスビルの魅力や特徴を熟知したオフィス物件マニア。

スタートアップ企業の移転支援経験が多く、そこで得た知見を活かし、お客様の理想のオフィス探しを全力でサポートいたします。

この物件を問い合わせる
物件概要
物件番号 fs-3330
物件名 NOVEL WORK AKIHABARA
所在地 東京都千代田区神田佐久間町3-37-4
最寄り駅 JR 秋葉原駅
徒歩4分

東京メトロ日比谷線
秋葉原駅 徒歩4分

つくばエクスプレス
秋葉原駅 徒歩5分

都営新宿線
岩本町駅 徒歩6分

JR 浅草橋駅
徒歩7分
階数 1階
面積 28.45坪 (94.068㎡)
推奨席数 16席
物件タイプ フルセットアップオフィス
会議室数 4名掛け会議室×1
6名掛け会議室×1
テレカンブース数 1室
竣工年 1985年8月
特徴・設備 # 敷金無し # 原状回復免除 # 家具・什器付き # テレカンブース付き # 会議室付き # Wi-Fi完備 # 男女別トイレ # 2路線利用可 # 最寄り駅から徒歩5分以内
募集条件
月額賃料@坪単価 853,500円
敷金 / 保証金 最大0ヶ月
償却
礼金
更新料 / 再契約料
入居可能日 2025年11月下旬予定
契約期間 2年 (契約開始より12ヶ月間解約不可 )
原状回復有無
保証契約

※表示価格は税抜き価格です。

この物件を問い合わせる

物件のお問い合わせフォーム

オフィス物件を探す

キーワード
カテゴリー

Get In Touch!!

希望条件が決まっていなくても、オフィス移転のプロが要件定義からご一緒させていただきます。まずはお気軽にご相談くださいませ。

お電話でのお問い合わせはこちら

03-6858-3030

平日
9:00~18:00