Powered by
ホーム 千代田区の居抜き・セットアップオフィスを探す JR秋葉原駅徒歩7分!上質なインテリアを備えた専用ラウンジが魅力のフルセットアップオフィス

JR秋葉原駅徒歩7分!上質なインテリアを備えた専用ラウンジが魅力のフルセットアップオフィス

募集中
当社貸主物件
仲介手数料無料
エリア:千代田区岩本町
広さ:30〜60坪
席数:10〜19席
公開日:2026.03.20

物件のご紹介

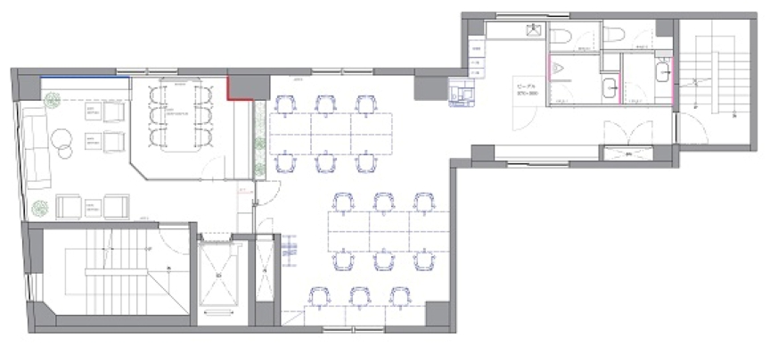
JR「秋葉原駅」から徒歩7分、都営新宿線「岩本町駅」からは徒歩3分の立地にある、フルセットアップオフィス『NOVEL WORK Iwamotocho』のご紹介です。

ご紹介の7階区画は広さ約31坪・最大15名規模で、事業拡大フェーズにあるスタートアップ・ベンチャー企業様の拠点として最適なレイアウトです。内装は建物の外観からは想像できないほど、モダンかつスタイリッシュにリニューアルされています。

エレベーターホールから続くラウンジエリアは、上質な内装とインテリアでコーディネート済み。来訪者に対して、自社の洗練されたイメージを自然と印象づけることができます。

また、メインとなる執務スペースには、あらかじめ機能的なオフィス家具が設置されており、入居時の什器選定や搬入の手間を削減可能です。契約後スムーズに事業をスタートできる点は、スピード感を重視する企業様にとって大きなメリットと言えるでしょう。

執務室とラウンジを繋ぐガラス張りの会議室、Web会議に必須のテレカンブースも1室完備しており、限られた面積ながら、実用面も押さえた構成となっています。

物件の詳細資料や現地内覧をご希望の際は、ぜひお気軽にお問い合わせください。

おすすめポイント

  1. 当社貸主物件のため【仲介手数料不要】
  2. 都内各所へのアクセスにも便利な「秋葉原駅」も徒歩圏内
  3. ラウンジ・執務エリア全てに家具・什器を備えたフルセットアップオフィス
  4. 執務エリアの奥まで光が差し込む空間設計

同ビル別フロアの物件はこちら

菅野 勇人

営業担当者

菅野 勇人

宅地建物取引士

セットアップオフィスから一般的なオフィスまで、多種多様なオフィスビルの魅力や特徴を熟知したオフィス物件マニア。

スタートアップ企業の移転支援経験が多く、そこで得た知見を活かし、お客様の理想のオフィス探しを全力でサポートいたします。

この物件を問い合わせる
物件概要
物件番号 fs-3452
物件名 NOVEL WORK Iwamotocho
所在地 東京都千代田区岩本町3-1-9
最寄り駅 都営新宿線
岩本町駅 徒歩3分

東京メトロ日比谷線
秋葉原駅 徒歩5分

JR 秋葉原駅
徒歩7分
階数 7階
面積 31.78坪(105.07㎡)
推奨席数 15席
物件タイプ フルセットアップオフィス
会議室数 6名掛け会議室×1室
テレカンブース数 1室
竣工年 1989年10月
特徴・設備 # 家具・什器付き # テレカンブース付き # 会議室付き # 男女別トイレ # 2路線利用可 # 最寄り駅から徒歩5分以内
募集条件
月額賃料@坪単価 746,830円(坪23,500円)
敷金 / 保証金 2,987,320円(4ヶ月分)
償却
礼金
更新料 / 再契約料
入居可能日 2026年7月下旬
契約期間 2年
原状回復有無
保証契約

※表示価格は税抜き価格です。

この物件を問い合わせる

物件のお問い合わせフォーム

オフィス物件を探す

キーワード
カテゴリー

Get In Touch!!

希望条件が決まっていなくても、オフィス移転のプロが要件定義からご一緒させていただきます。まずはお気軽にご相談くださいませ。

お電話でのお問い合わせはこちら

03-6858-3030

平日
9:00~18:00