Powered by
ホーム 東京都内 その他の居抜き・セットアップオフィスを探す 三軒茶屋駅徒歩8分、敷金最大0ヶ月・原状回復不要のフルセットアップオフィス

三軒茶屋駅徒歩8分、敷金最大0ヶ月・原状回復不要のフルセットアップオフィス

募集終了
当社貸主物件
仲介手数料無料
エリア:東京都内 その他
広さ:〜30坪
席数:10〜19席
公開日:2025.10.01

物件のご紹介

三軒茶屋エリアに誕生した「NOVEL WORK Sangenjaya」は、高い利便性と洗練されたデザインが見事に調和した、家具付きフルセットアップオフィスです。東急田園都市線「三軒茶屋駅」から徒歩8分、同路線の「池尻大橋駅」や東急世田谷線の「三軒茶屋駅」も利用可能で、渋谷など都心エリアへのアクセスも良好です。

駅からの道のりも分かりやすく、日々の通勤はもちろん、お客様をお迎えする際のご案内もスムーズです。ビル周辺には「LUUP」のポートが複数設置されており、駅までの移動や近隣への足として、日々のフットワークを軽快にサポートします。

2024年12月にリニューアル工事が完了している貸室内は、細部までこだわったデザイン性の高い空間へと生まれ変わっており、従業員の皆様の創造性を刺激し、日々のモチベーション向上にも大きく貢献することが期待できます。

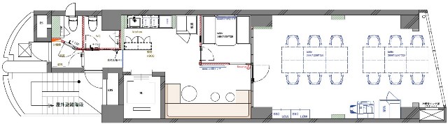
設備面も充実しており、4名用の会議室に加え、集中して業務に取り組めるテレカンブースを2室ご用意。開放的なラウンジスペースには大型モニターも備え付けられ、打ち合わせスペースとしてのご利用からカジュアルなコミュニケーションスペースとしてのご利用まで、様々なビジネスシーンでフレキシブルにご活用いただけます。

特筆すべきは、敷金最大0ヶ月・原状回復不要という費用条件面で、これにより、入退去時のコストを大幅に抑えることが可能です。

内覧のご相談など、ぜひお早めにお問い合わせください。

おすすめポイント

  1. 当社貸主物件のため仲介手数料不要
  2. 敷金最大0ヶ月・原状回復不要で、移転コストを大幅に削減できる「フルセットアップオフィス」
  3. 三軒茶屋駅徒歩8分、ビル付近に「LUUP」ポートも設置されており、移動手段として利用可能
  4. 4名用会議室1室にテレカンブース2室完備、スムーズな業務運営をサポート
  5. 2024年12月にリニューアル工事が完了、什器付きで即利用開始が可能
菅野 勇人

営業担当者

菅野 勇人

宅地建物取引士

セットアップオフィスから一般的なオフィスまで、多種多様なオフィスビルの魅力や特徴を熟知したオフィス物件マニア。

スタートアップ企業の移転支援経験が多く、そこで得た知見を活かし、お客様の理想のオフィス探しを全力でサポートいたします。

この物件を問い合わせる
物件概要
物件番号 fs-3116
物件名 NOVEL WORK Sangenjaya
所在地 東京都世田谷区太子堂1-4-33
最寄り駅 東急田園都市線
三軒茶屋駅 徒歩8分

東急田園都市線
池尻大橋駅 徒歩10分

東急世田谷線
三軒茶屋駅 徒歩12分
階数 3階
面積 23.81坪
推奨席数 12席
物件タイプ フルセットアップオフィス
会議室数 4名掛け会議室×1
テレカンブース数 2室
竣工年 1992年4月
特徴・設備 # 敷金無し # 原状回復免除 # 家具・什器付き # テレカンブース付き # 会議室付き # 男女別トイレ # 2路線利用可 # Wi-Fi完備
募集条件
月額賃料@坪単価 619,060円(坪26,000円)
敷金 / 保証金 最大0ヶ月
償却
礼金
更新料 / 再契約料
入居可能日 即日
契約期間 2年 (1年以内での解約不可)
原状回復有無
保証契約

※表示価格は税抜き価格です。

この物件を問い合わせる

物件のお問い合わせフォーム

オフィス物件を探す

キーワード
カテゴリー

Get In Touch!!

希望条件が決まっていなくても、オフィス移転のプロが要件定義からご一緒させていただきます。まずはお気軽にご相談くださいませ。

お電話でのお問い合わせはこちら

03-6858-3030

平日
9:00~18:00