Powered by
ホーム 千代田区の居抜き・セットアップオフィスを探す 【敷金最大0・原状回復不要】秋葉原駅徒歩3分の新装フルセットアップオフィス

【敷金最大0・原状回復不要】秋葉原駅徒歩3分の新装フルセットアップオフィス

募集終了
当社貸主物件
仲介手数料無料
エリア:千代田区神田佐久間町
広さ:〜30坪
席数:10〜19席
公開日:2024.11.26

物件のご紹介

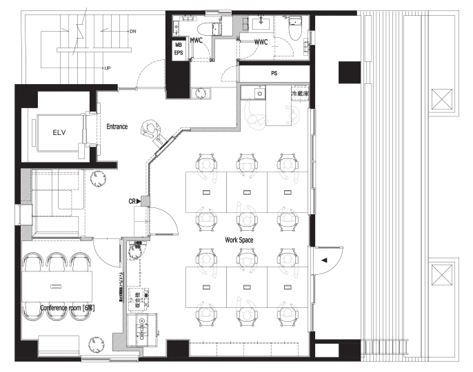
『NOVEL WORK AKIHABARA』はJR秋葉原駅徒歩3分、「岩本町駅」や「浅草橋駅」も徒歩圏内にあり、新宿・銀座・東京など都心主要エリアへの移動がスムーズに行える、内装・什器付きのフルセットアップオフィスです。

2025年6月にセットアップ工事が完了し、内装や設備の新しい、快適なオフィス環境を提供します。

室内は12名想定の什器付き執務室に加え、コンパクトながら6名掛けの会議室とテレカンブース各1室完備しており、社内ミーティングや顧客対応も柔軟に行える環境となっています。

【敷金最大0・仲介手数料不要】で、初期費用を大幅に抑えてのご入居が可能。さらに、【原状回復不要】物件ともなっているため、入居時だけでなく、退去時のコストを抑えられる点も魅力です。

千代田区・秋葉原エリアでコストパフォーマンスの高い小規模オフィス物件をお探しのスタートアップ・ベンチャー企業様には最適な物件です。ぜひお早めにお問い合わせください。

おすすめポイント

  1. 当社貸主物件のため仲介手数料不要
  2. 敷金最大0/原状回復不要で入退去時コストを大幅に抑えられる
  3. 会議室・テレカンブース・什器まで完備した、利便性の高いフルセットアップオフィス
  4. 25年6月リニューアル完了の新しい内装で成長フェーズの企業様に最適

同ビル別フロアの物件はこちら

菅野 勇人

営業担当者

菅野 勇人

宅地建物取引士

セットアップオフィスから一般的なオフィスまで、多種多様なオフィスビルの魅力や特徴を熟知したオフィス物件マニア。

スタートアップ企業の移転支援経験が多く、そこで得た知見を活かし、お客様の理想のオフィス探しを全力でサポートいたします。

この物件を問い合わせる
物件概要
物件番号 fs-3168
物件名 NOVEL WORK AKIHABARA
所在地 東京都千代田区神田佐久間町3-37-4
最寄り駅 JR 秋葉原駅 徒歩3分

都営新宿線
岩本町駅 徒歩5分

JR 浅草橋駅 徒歩7分
階数 5階
面積 22.60坪(74.71㎡)
推奨席数 12室
物件タイプ フルセットアップオフィス
会議室数 6名掛け会議室×1
テレカンブース数 1室
竣工年 1985年8月
特徴・設備 # 敷金無し # 原状回復免除 # 家具・什器付き # テレカンブース付き # 会議室付き # 男女別トイレ # 2路線利用可 # 最寄り駅から徒歩5分以内
募集条件
月額賃料@坪単価 678,000円(坪30,000円)
敷金 / 保証金 最大0ヶ月
償却
礼金
更新料 / 再契約料
入居可能日 即日
契約期間 2年 (1年以内での解約不可)
原状回復有無
保証契約

※表示価格は税抜き価格です。

この物件を問い合わせる

物件のお問い合わせフォーム

オフィス物件を探す

キーワード
カテゴリー

Get In Touch!!

希望条件が決まっていなくても、オフィス移転のプロが要件定義からご一緒させていただきます。まずはお気軽にご相談くださいませ。

お電話でのお問い合わせはこちら

03-6858-3030

平日
9:00~18:00